Portable Generator User Manual

TP-6516 4/09 9
Introduction
This manual provides installation instructions for 12, 17,
and 18 kW residential/commercial generator sets
equipped with the Kohlerr DC-RET Digital Control.
Refer to TP-6517, Operation Manual, for generator set
operation and maintenance instructions.
The generator set is approved for use in stationary
applications in locations served by a reliable utility
power source.
Have an authorized distributor/dealer install the
generator set outdoors according to the instructions in
this manual. The generator set installation must comply
with the National Electrical Code (NEC) and local code
requirements. Do not install this generator set indoors.
Information in this publication represents data available
at the time of print. Kohler Co. reserves the right to
change this publication and the products represented
without notice and without any obligation or liability
whatsoever.
Read this manual and carefully follow all procedures
and safety precautions to ensure proper equipment
operation and to avoid bodily injury. Read and follow the
Safety Precautions and Instructions section at the
beginning of this manual.
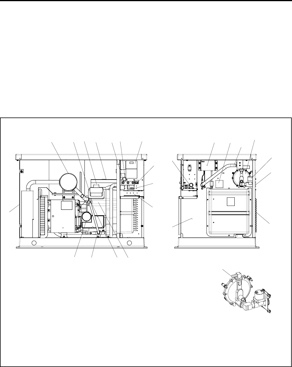
See Figure 1 or Figure 2 for generator set component
locations.
1. Muffler
2. Oil check
3. Oil fill
4. Air cleaner
5. Fuses
6. RS-232 connector (for application program updates)
7. Controller user interface
8. Generator set master switch (RUN-OFF/RESET-AUTO)
9. Load circuit breaker
10. Field-connection terminal block location
11. Spark plug locations (both sides)
12. Oil drain hose
13. Oil drain valve
14. Oil filter
15. Exhaust
16. Equipment ground
17. Battery charger
18. DSAI lead location
19. LP fuel orifice location
20. Gas regulator assembly
21. Fuel solenoid valve
22. Fuel inlet
23. Air intake
24. Engine starting battery location
(battery purchased separately)
ADV-7466-
75 61234
14 13
24
9
8
16
17 20
21
22
23
15
11
10
18
19
See
Detail
12
Fuel system detail
19
Figure 1 Generator Set Component Locations, 12 kW Models










