How to Guide

Product Information
Applicable product:
Bath faucet with traditional handles K-16210-4A
Lever handles are ADA compliant.
Required accessories:
27-7/8″ (70.8 cm) riser tubes, pair (for
deck-mount bath faucet installation) OR
K-126
27-7/8″ (70.8 cm) riser tubes, pair (for
K-100 Birthday Bath
®
bath installation) OR
K-127
31-1/2″ (80 cm) riser tubes, pair (for K-700
Vintage
®
bath installation)
K-128
Optional accessories:
Wall-mount adapter kit K-101
Wall-mount handshower holder K-6525
Installation Notes
Install this product according to the installation guide.
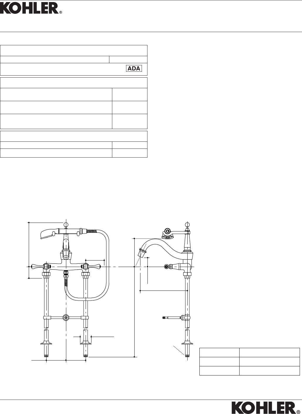
X
X
8-15/16"
(22.7 cm)
2-3/8"
(6 cm)
3-13/16"
(9.7 cm)
5-5/8"
(14.3 cm)
1-13/16"
(4.6 cm)
9-5/8" (24.4 cm)
2-1/4"
(5.7 cm) D.
4"
(10.2 cm)
4"
(10.2 cm)
1/2" NPT
27-7/8" (70.8 cm)
31-1/2" (80 cm)K-128
K-126, K-127
Roughing-In
K-16210
REVIVAL
®
BATH FAUCET
REVIVAL
®
BATH FAUCET
1004755-1-
B

