Operating Guide

5. Installer les panneaux de porte
ATTENTION: Risque de blessures. Les panneaux de porte sont très lourds. Deux personnes
devraient soulever ce lavabo et le mettre en place.
REMARQUE: Réaliser ces étapes d’installation de l’extérieur de la baignoire/douche.
IMPORTANT! Risque de blessures ou d’endommagement du produit. Il est important que les butées
empêchent un contact direct entre le panneau de la porte et le cadre métallique. Si le panneau de la porte
entre en contact direct, le verre pourra se briser et résultera en lésions corporelles.
AVIS: Risque d’endommagement du produit. Pour la protection de la baignoire, utiliser une bâche de
protection ou matériau similaire comme couverture de protection durant ces étapes.
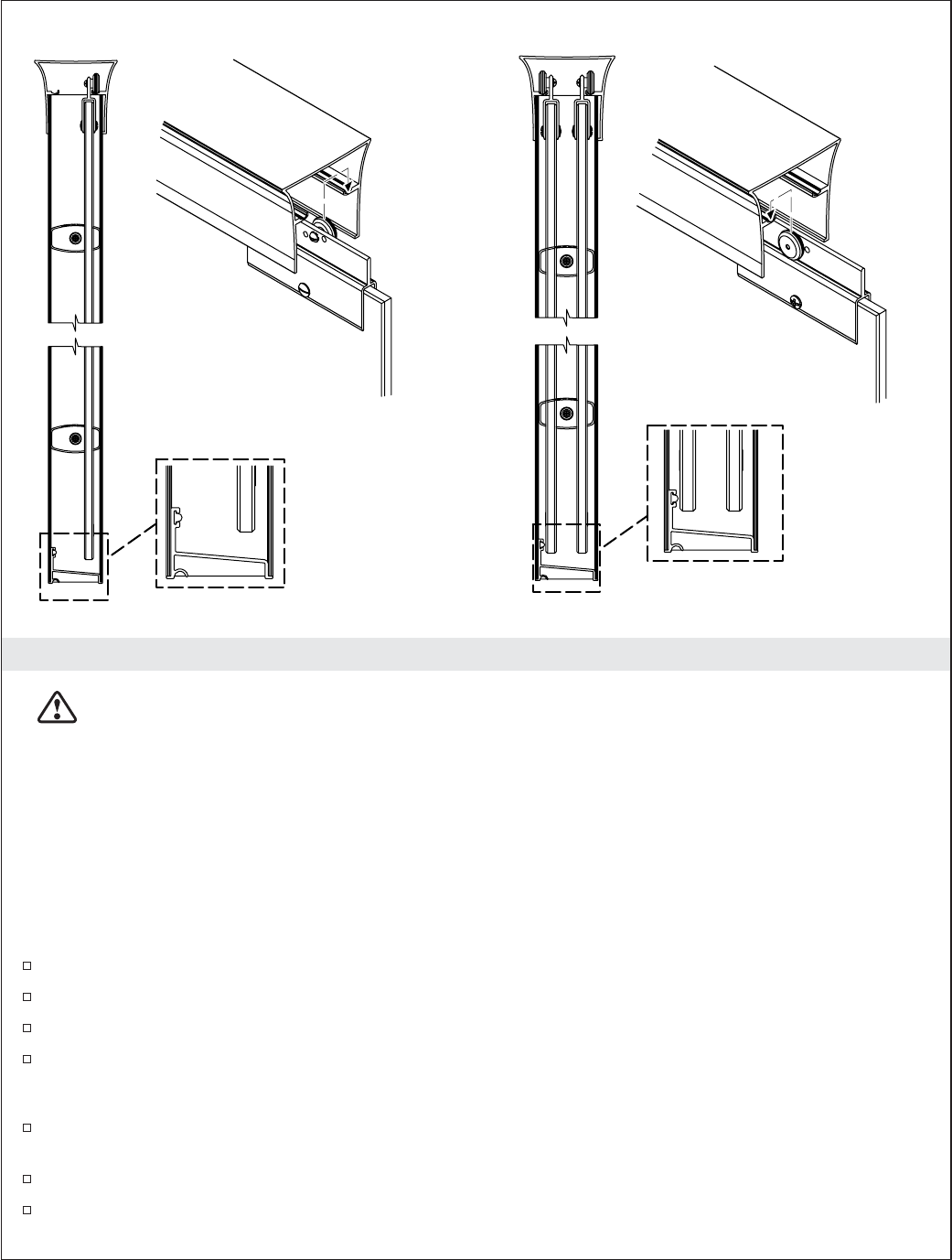
Installer le panneau intérieur
Passer un chiffon le long de chacun des rails intérieurs du rail supérieur pour éliminer les débris.
Soulever le panneau intérieur de porte avec les rouleaux orientés à l’écart.
Positionner les rouleaux à l’intérieur du rail supérieur.
Amener le panneau intérieur sur le même côté que celui où se trouve la pomme de douche.
Installer le panneau extérieur
Soulever le panneau de porte extérieur avec les rouleaux faisant face et positionner les rouleaux sur
le rail extérieur.
Placer les rouleaux sur le rail extérieur du rail supérieur.
Amener le panneau extérieur vers le côté opposé à la pomme de douche.
Kohler Co. Français-10 1054857-2-B










