Specification

Technical Information
Fixture*:
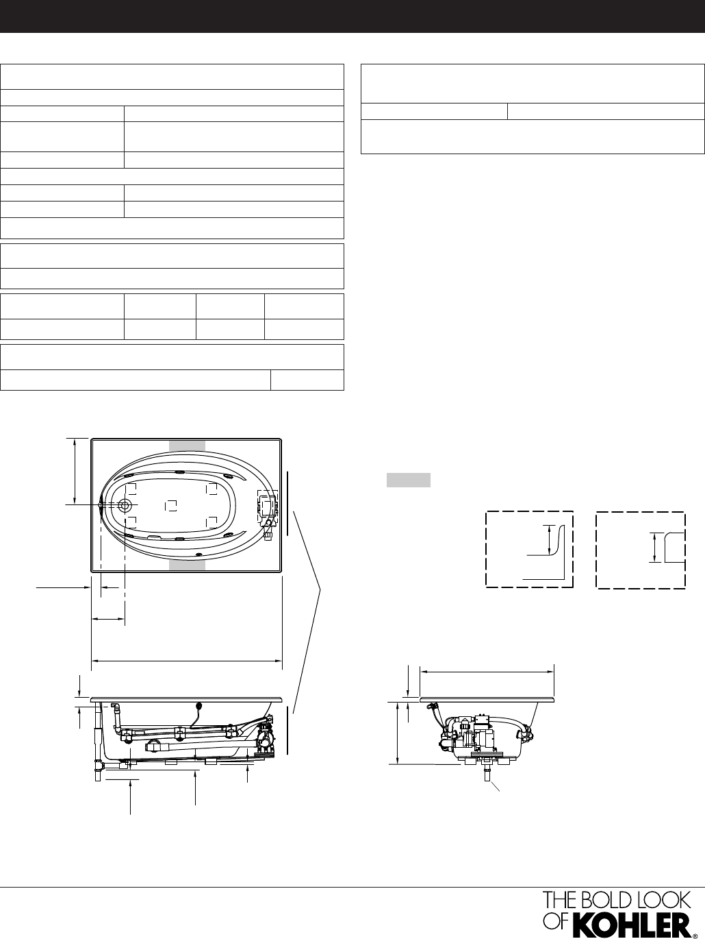
Bathing well:
Basin area, bottom 43 (1092 mm) x 20-1/2 (521 mm)
Basin area, top 53-1/2 (1359 mm) x 32-1/8 (816
mm)
Weight 110 lbs (50 kg)
To overflow:
Water depth 15 (381 mm)
Capacity 57 gal (215.9 L)
* Approximate measurements for comparison only.
Drop-in cut-out dimensions:
58-1/2 (1486 mm) x 40-1/2 (1029 mm)
Pump: V Hz A
1-speed 120 60 7.5
Minimum access panel pump/control:
20 (508 mm) W x 15 (381 mm) H required
Required Electrical Service
Dedicated circuit required, protected with a Class A
Ground-Fault Circuit-Interrupter (GFCI):
Pump/control 120 V, 15 A, 60 Hz
Locate the outlet behind the whirlpool and within 24
(610 mm) of the pump.
Installation Notes
Install this product according to the installation guide.
Floor support under the whirlpool must provide for a minimum
of 35 lbs/square foot (171 kg/square meter) loading.
If installing a rim-mount faucet, make sure there is no
interference with the drain overflow and circulating system
before drilling any holes. Consult local and national codes for
minimum air gap requirements if installing a spout on the
faucet deck.
2-7/8"
(73 mm)
3"
(76 mm)
Recommended faucet area
Tile Flange
Detail
Drop-In Rim
Detail
1-1/2"
(38 mm)
1-1/4"
(32 mm)
No change in measurements if connected with
drain illustrated. (K-11677 or K-11677M)
Pump/Control Access
1-1/2"
(38 mm)
19-1/2"
(495 mm)
3-1/8"
(79 mm)
3-1/2"
(89 mm)
21"
(533 mm)
Ø 1-1/2"
10-13/16"
(275 mm)
60" (1524 mm)
42" (1067 mm)
3/8" (10 mm)
Product Diagram
WINDWARD
®
WINDWARD
®
BATH WHIRLPOOL
Page2of2
1047207-4-
E