Specification

Technical Information
Fixture*:
Bathing well:
Basin area, bottom 48″ (121.9 cm) x 24″ (61 cm)
Basin area, top 59″ (149.9 cm) x 30″ (76.2 cm)
To overflow:
Water depth 14″ (35.6 cm)
Capacity 67 gal (253.6 L)
Weight 115 lbs (52.2 kg)
* Approximate measurements for comparison only.
Drop-in cutout: 64″ (162.6 cm) x 34″ (86.4 cm)
Pump: Hp V Hz A
1-speed 1.25 120 60 7.5
Heater: Kw V Hz A
1.5 120 60 12.5
Required Electrical Service
Two dedicated circuits required, each protected with
Class A Ground-Fault Circuit-Interrupter (GFCI):
Pump/control 120 V, 15 A, 60 Hz
Heater 120 V, 15 A, 60 Hz
Locate the outlets behind the whirlpool and within 24″
(61 cm) of the pump.
Installation Notes
Install this product according to the installation guide.
Floor support under whirlpool must provide for a minimum of
43 lbs/square foot (208 kg/square meter) loading.
If installing a rim-mount faucet, make sure there is no
interference with the drain overflow and circulating system
before drilling any holes. If installing a spout on the faucet
deck, consult local and national codes for minimum air gap
requirements.
The apron must be installed before the finished floor and wall
materials are installed.
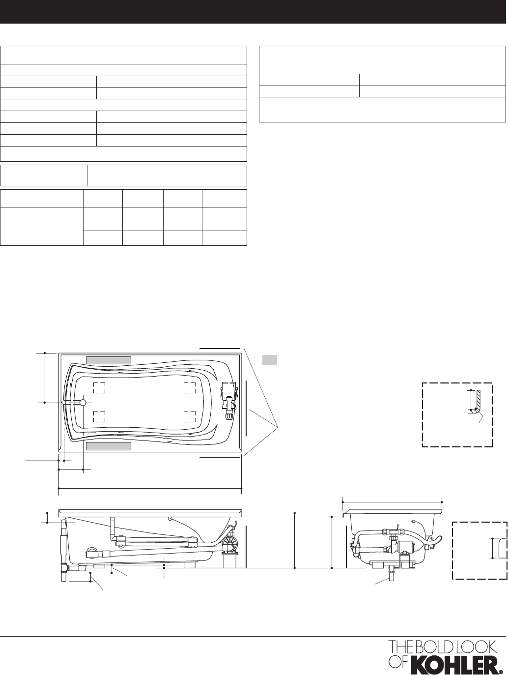
18-1/2"
(47 cm)
20"
(50.8 cm)
8-11/16" (22.1 cm)
1-11/16"
(4.3 cm)
3"
(7.6 cm)
2-7/8"
(7.3 cm)
1" (2.5 cm)
35-7/8" (91.1 cm)
3-1/2"
(8.9 cm)
18"
(45.7 cm)
66" (167.6 cm)
1-1/2" OD
No change in measurements if connected with drain
illustrated. (K-7161-AF or K-7161M-AF)
Recommended Faucet Area
Pump/Control Access
(if apron is not used)
20" (50.8 cm) W x
15" (38.1 cm) H
1-1/4"
(3.2 cm)
1/2" (1.3 cm)
R. Max
Integral
Flange Detail
1-1/2"
(3.8 cm)
Drop-in Rim
Detail
Product Diagram
MARIPOSA
®
MARIPOSA
®
BATH WHIRLPOOL
Page2of2
1014725-4-
B


