Specification

Technical Information
Fixture*:
Bathing well:
Basin area, bottom 50″ (1270 mm) x 24″ (610 mm)
Basin area, top 65″ (1651 mm) x 27″ (686 mm)
Weight 116 lbs (52.6 kg)
To overflow:
Water depth 14″ (356 mm)
Capacity 72 gal (272.5 L)
* Approximate measurements for comparison only.
Drop-in cutout 70″ (1778 mm) x 34″ (864 mm)
VHzA
1-speed pump 120 60 7
Heated surface 120 60 .5
Required Electrical Service
Dedicated circuit required, protected with a Class A
Ground-Fault Circuit-Interrupter (GFCI):
Pump/Control/Heated
surface
120 V, 15 A, 60 Hz
Installation Notes
Install this product according to the installation guide.
Floor support under the bath whirlpool must provide for a
minimum of 41 lbs/square foot (200 kg/square meter) loading.
If installing a rim-mount faucet, make sure there is no
interference with drain overflow and circulating system before
drilling any holes. Consult local and national codes for
minimum air gap requirements if installing a spout on the
faucet deck.
The apron must be installed before the finished floor and wall
materials are installed.
Locate a GFCI-protected 120 V, 15 A, grounded duplex
electrical outlet within 24″ (610 mm) of the pump.
No change in measurements if connected with drain
illustrated. (K-7166-AF)
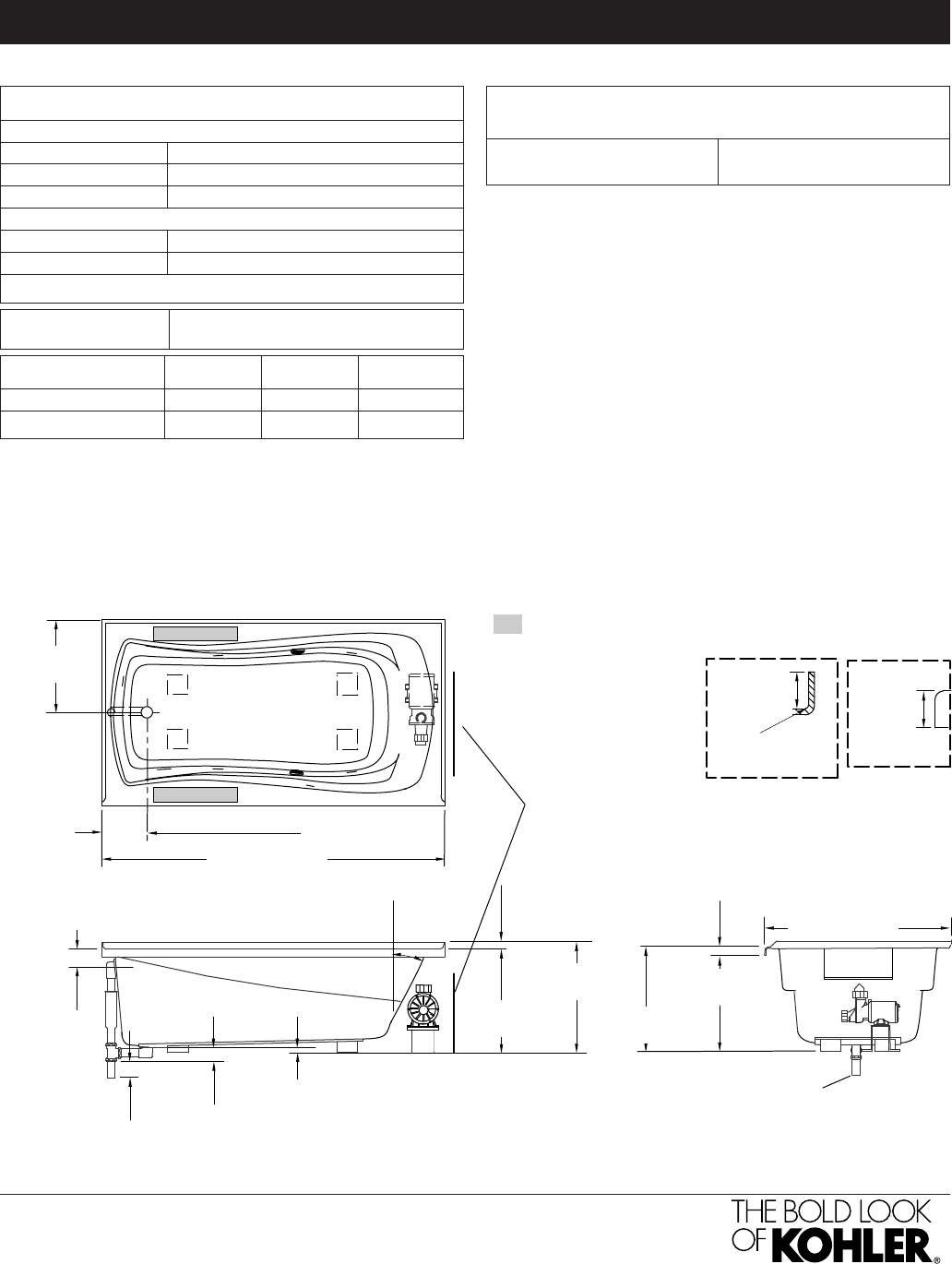
Pump/Control Access
(If Apron Is Not Used)
30" (762 mm) W x
15" (381 mm) H
18-1/2"
(470 mm)
20"
(508 mm)
10-1/4" (260 mm)
3"
(76 mm)
2-7/8"
(73 mm)
1" (25 mm)
36" (914 mm)
3-1/2"
(89 mm)
18"
(457 mm)
72" (1829 mm)
1-1/2" Bath Drain
1-1/4"
(32 mm)
1/2" (13 mm)
R. Max
Integral
Flange Detail
1-1/2"
(38 mm)
Drop-in Rim
Detail
Recommended Faucet Area
1-1/2"
(38 mm)
Lumbar
Angle 42˚
1-1/4"
(32 mm)
20"
(508 mm)
21-1/4"
(540 mm)
Product Diagram
MARIPOSA
®
MARIPOSA
®
6’ BATH WHIRLPOOL WITH BASKTM
Page2of2
1201673-4-
B