Specification

Technical Information
Fixture*:
Basin area:
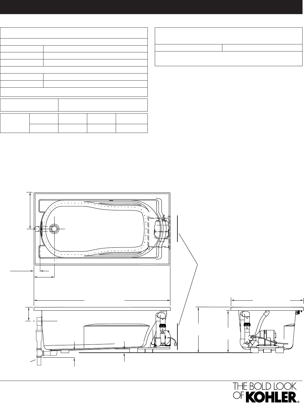
Bathing well 42″ (1067 mm) x 20″ (508 mm)
Top area 51″ (1295 mm) x 24″ (610 mm)
Weight 84 lbs (38.1 kg)
To overflow:
Water depth 14″ (356 mm)
Capacity 60 gal (227.1 L)
* Approximate measurements for comparison only.
Drop-in cut-out 58″ (1473 mm) x 30″ (762 mm)
Blower
motor:
Heater V Hz A
300 W 120 60 5
Required Electrical Service
Dedicated circuit required, protected with Class A
Ground-Fault Circuit-Interrupter (GFCI):
Blower motor: 120 V, 15 A, 60 Hz
Blower motor is supplied with a 24″ (610 mm)
grounding-type plug-in cord.
Installation Notes
NOTICE: If the blower motor and check valve are
relocated, the following two procedures are required: 1.
Provide two access panels. Locate one access panel at the
blower motor/control location and the other access panel at
the control box. 2. Relocate the blower motor and the check
valve together. Do not relocate one without the other.
Install this product according to the installation guide.
Floor support under the bath must provide for a minimum of
47 lbs/square foot (230 kg/square meter) loading.
A blower motor access panel is required.
1-1/2" OD
1" (25 mm)
2-1/4"
(57 mm)
3"
(76 mm)
16"
(406 mm)
No change in measurements with drain
shown. (K-7161-AF or K-7161M-AF)
Blower Motor Access
18" (457 mm) W x
15" (381 mm) H
2-1/2"
(64 mm)
18-1/2"
(470 mm)
20"
(508 mm)
9"
(229 mm)
60" (1524 mm)
32" (813 mm)
Product Diagram
DEVONSHIRE
®
DEVONSHIRE
®
5’ BUBBLEMASSAGETM BATH
Page2of2
1034591-4-
F


