Specification

K-550 (cont.) Under-mount kit ❑ NA
Technical Information
Fixture: Approx. measurements for comparison only.
Bathing well:
Basin, bottom 44-1/2″ (1130 mm) x 22-5/16″ (567 mm)
Basin, top 59-5/8″ (1514 mm) x 25-1/2″ (648 mm)
Weight 121 lbs (54.9 kg)
To overflow:
Water depth 18″ (457 mm)
Capacity 85.8 gal (325 L)
Drop-in cutout 64-1/2″ (1638 mm) x 30-1/2″ (775 mm)
Blower
motor/control
300 W 120 V 60 Hz 10 A
Amplifier 15 W (per
channel)
120 V 50/60 Hz -
Heater 65 W 120 V 60 Hz 0.5 A
Required Electrical Service: Dedicated circuit required,
protected with Class A Ground-Fault Circuit-Interrupter
(GFCI) or Residual Current Device (RCD):
Blower motor/heater/amplifier: 120 V, 15 A, 60 Hz
Installation Notes
Install this product according to the installation guide. Ensure
that the bath, user interface, amplifier, and transducers are
functional before completing the installation.
Control amplifier fits 16″ (406 mm) center studs. 25’ (7.6 m)
cables are included.
Locate the bath within 24″ (610 mm) of a GFCI-protected 120
V, 15 A grounded electrical outlet. A second grounded outlet
within the wall framing must be within 24″ (610 mm) of the
planned control amplifier. One electrical service may be used
for the entire bath and related electrical components.
Hot water supply should be 70% of capacity or greater.
Installations will vary.
Floor support under bath must provide for a minimum of 56.7
lbs/square foot (277 kg/square meter) loading.
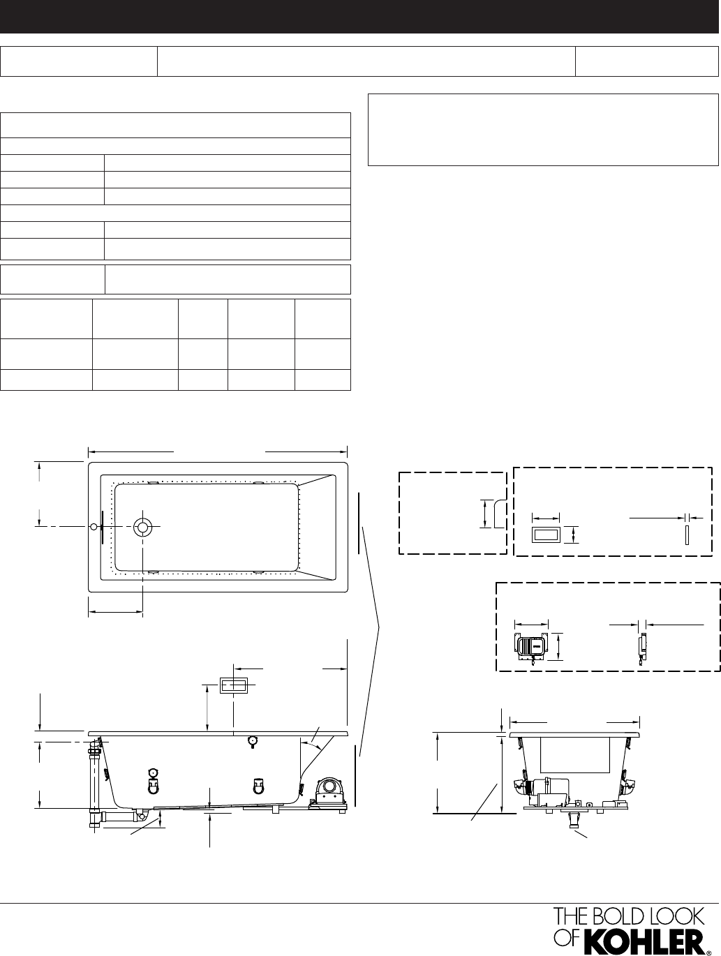
1"
(25 mm)
66" (1676 mm)
22"
(559 mm)
32"
(813 mm)
2-7/16"
(62 mm)
16"
(406 mm)
16-3/4"
(425 mm)
13/16"
(21 mm)
4-1/8" (105 mm)
No change in measurement if connected with
drain illustrated. (K-7272)
1-1/2" Bath Drain
5-5/8"
(143 mm)
3-1/2"
(89 mm)
7/8"
(22 mm)
User Interface
Lumbar
Angle 40˚
*10"
(254 mm)
*24"
(610 mm)
*Recommended User
Interface Location
Control Amplifier
14-1/2"
(368 mm)
11-3/4"
(298 mm)
3-3/16"
(81 mm)
18-3/4"
(476 mm)
21"
(533 mm)
Control Access
30" (762 mm) W
x 15" (381 mm) H
Min
Drop-in Rim
Detail
1"
(25 mm)
Product Diagram
UNDERSCORE
®
UNDERSCORE
®
VIBRACOUSTIC
®
BUBBLEMASSAGETM BATH
Page2of2
1216004-4-
A