Specification Sheet

72" (1829 mm)
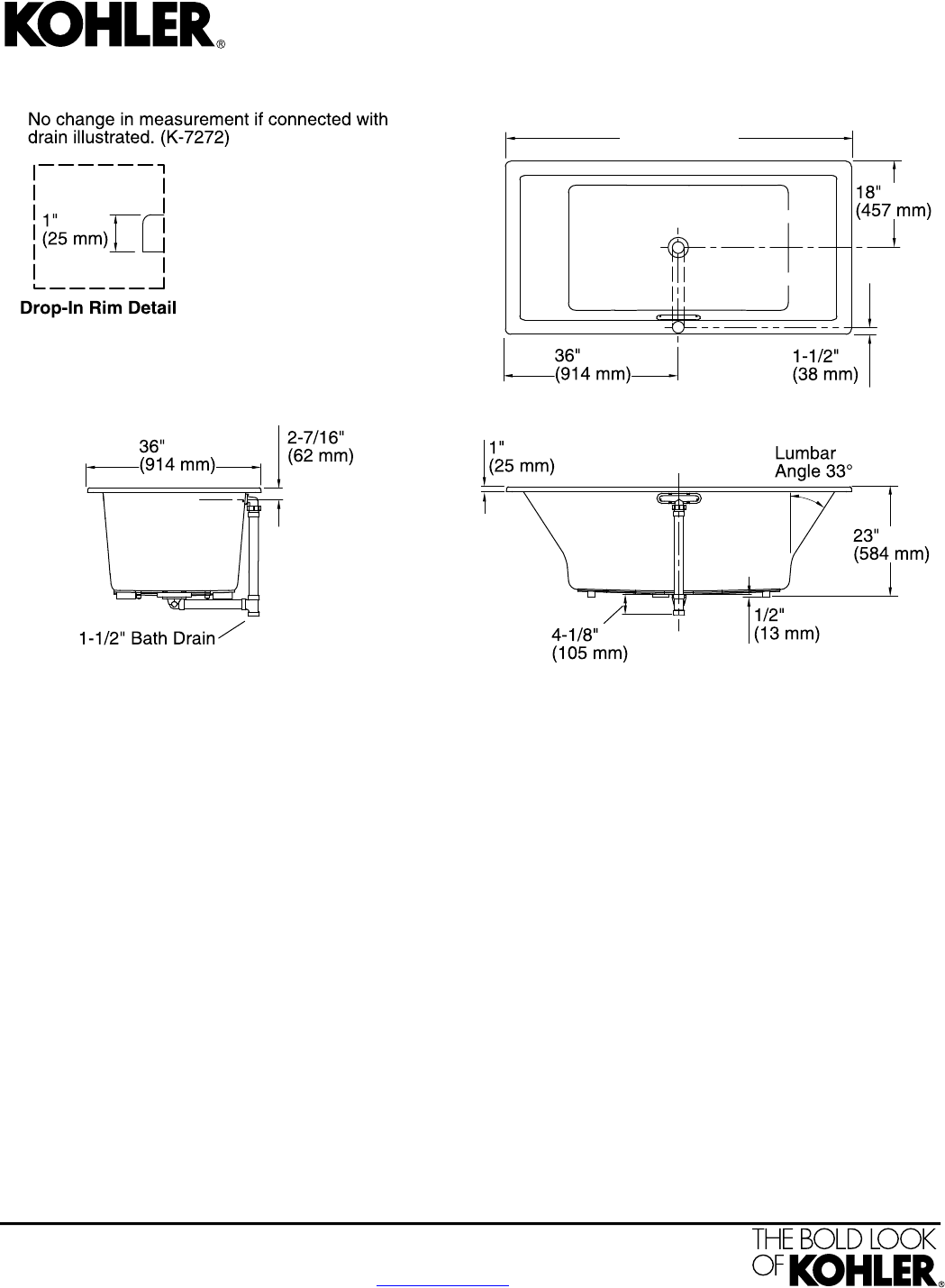
Notes
Technical Information
Measure your actual product for rough-in details.
All product dimensions are nominal.
Install this product according to the installation
instructions.
Drop-in, Under-mountInstallation:
CenterDrain location:
The hot water supply should be 70% of the
capacity of the bath or greater. Installations will
vary.
45-3/4" x 25-15/16" (1162 mm x 659 mm)Basin area, bottom:
65-3/8" x 29-5/16" (1661 mm x 745 mm)Basin area, top:
82 lbs (37.2 kg)Weight:
58 lbs/ft² (283.2 kg/m²)Minimum floor load:
19-7/16" (494 mm)Water depth:
112.9 gal (427.4 L)Water capacity:
Drop-in, 71-1/2" x 35-1/2" (1816 mm x
902 mm)
Cutout:
2-3/4" (69 mm)Minimum flat for door:
USA/Canada: 1-800-4KOHLER (1-800-456-4537)
Kohler Co. reserves the right to make revisions without notice to product specifications.
For the most current Specification Sheet, go to www.kohler.com.
3-7-2017 06:09
Underscore
®
6' Bath
K-1834


