Specification

4" (102 mm)
Notes
Technical Information
Install this product according to the installation
guide.
All product dimensions are nominal.
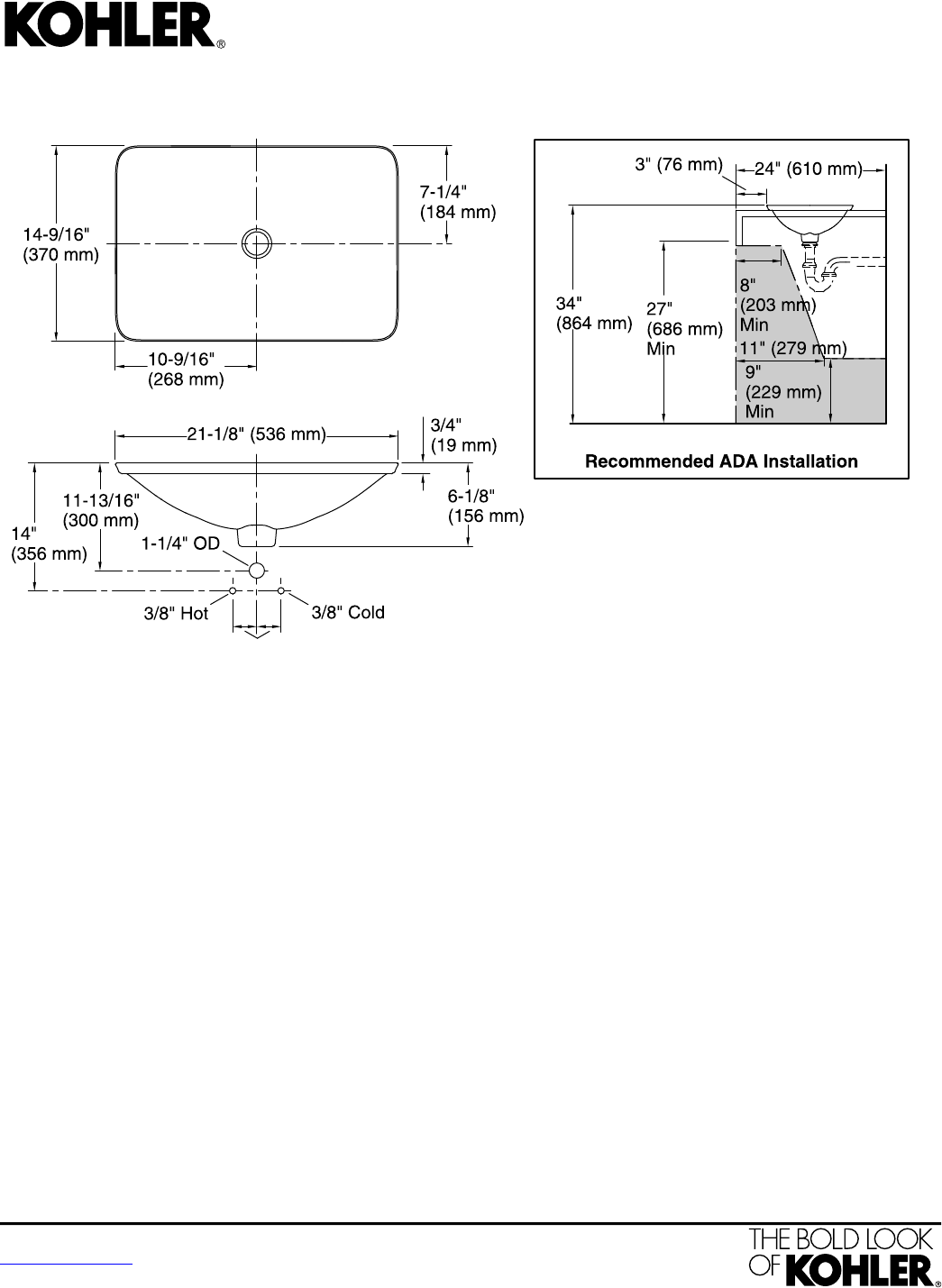
SingleBowl configuration:
NOTICE: Countertop manufacturer or cutter must
use the cut-out template provided with the
Drop-InInstallation:
Length: 21-1/8" (536 mm)
Width: 14-9/16" (370 mm)
Bowl area (Only)
product, or a current one provided by Kohler Co.
(call 1-800-4-KOHLER). Kohler Co. is not
Bowl depth: 4-1/8" (105 mm)
Water depth: 4-1/8" (105 mm)
responsible for cutout errors when the incorrect
cut-out template is used.
Drop-in, 1242828, required, includedTemplate:
ADA compliant when installed to the specific
requirements of these regulations.
USA/Canada: 1-800-4KOHLER (1-800-456-4537)
www.kohler.com
1-7-2015 02:13
Carillon
Wading Pool
®
Bathroom Sink
K-7799