Instruction Manual

TECHNICAL DATA 6
27
BATCHFLUX 5500 C
www.krohne.com05/2014 - 4000827703 - HB BATCHFLUX 5500 R03 en
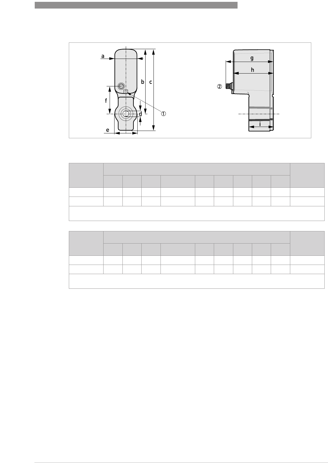
DN10...15
1 (Grounding)
2 M12; 5 - 8 pins connector
Nominal
size
Dimensions [mm] Weight
[kg]
a b c d e f g h i
DN10 50 140 179 10.5 → 8 45.4 60 106.5 88 54 1.4
DN15 50 140 179 14 → 12 45.4 60 106.5 88 54 1.4
Note on dimension d: As the diameter reduces to the middle, the diameter is specified for the inlet and
for the middle
Nominal
size
Dimensions [inches] Weight
[lb]
a b c d e f g h i
3/8" 1.97 5.51 7.05 0.41 → 0.31 1.79 2.36 4.19 3.46 2.13 3.1
1/2" 1.97 5.51 7.05 0.55 → 0.47 1.79 2.36 4.19 3.46 2.13 3.1
Note on dimension d: As the diameter reduces to the middle, the diameter is specified for the inlet and
for the middle










