User guide
Manuals
Brands
Lenze Manuals
Hardware
E94AZPM
101
102
103
104
105
106
107
108
109
110
Table Of Contents
EDK94ZPM113
!
!!
DE
Lieferumfang
Identifikation
Inhalt
Sicherheitshinweise
Verwendete Hinweise
Sicherheitshinweise für die Installation nach UL oder UR
Technische Daten
Mechanische Installation
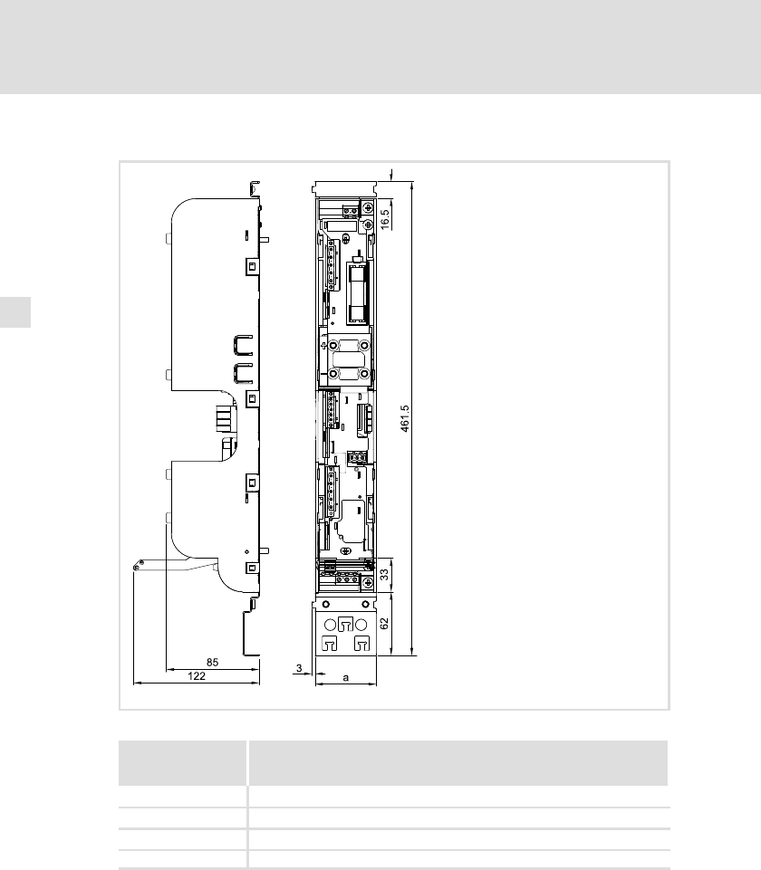
Abmessungen
Anordnung der Geräte
Montageschritte
Elektrische Installation
Wichtige Hinweise
Schaltungsbeispiel
Verdrahtung
Stromschienen verbinden
Ausführung der Leitungen
Schirm auflegen
Klemmenbelegung
EN
Scope of supply
Identification
Contents
Safety instructions
Notes used
Safety instructions for the installation according to UL or UR
Technical data
Mechanical installation
Dimensions
Arrangement of the devices
Mounting steps
Electrical installation
Important notes
Example circuit
Wiring
Connecting busbars
Design of the cables
How to connect the shield
Terminal assignment
FR
Equipement livré
Identification
Sommaire
Consignes de sécurité
Consignes utilisées
Consignes de sécurité et d’utilisation spécifiques selon UL et UR
Spécifications techniques
Installation mécanique
Encombrements
Disposition des appareils
Opérations de montage
Installation électrique
Remarques importantes
Exemple de câblage
Câblage
Relier les barres conductrices
Spécification relative aux câbles utilisés
Application du blindage
Affectation des bornes
ES
Contenido del suministro
Identificación
Contenido
Instrucciones de seguridad
Indicaciones utilizadas
Instrucciones de seguridad para la instalación según UL o UR
Datos técnicos
Instalación mecánica
Dimensiones
Colocación de los equipos
Pasos para el montaje
Instalación eléctrica
Indicaciones importantes
Ejemplo de conexión
Cableado
Unir barras conductoras
Ejecución de los cables
Colocar malla
Asignación de bornes
IT
Oggetto della fornitura
Identificazione
Sommario
Informazioni sulla sicurezza
Avvertenze utilizzate
Informazioni sulla sicurezza per l'installazione secondo UL o UR
Dati tecnici
Installazione meccanica
Dimensioni
Disposizione delle apparecchiature
Procedura di montaggio
Installazione elettrica
Note importanti
Esempio di schema di collegamento
Cablaggio
Collegamento delle barre DC bus
Esecuzione dei collegamenti
Schermatura
Assegnazione dei morsetti
Installazione meccanica
Dimensioni
3
106
EDK94ZPM113 DE/EN/FR/ES/IT 4.0
Base di montaggio
E94AZPM003
Fig.3−2
Dimensioni della base di montaggio
Dimensioni [mm]
Tipo
A
E94AZPM0044
60
E94AZPM0094
90
E94AZPM0244
120
E94AZPM0324
120
1
...
...
104
105
106
107
108
...
...
122