User Manual

7
NET WEIGHT - 2.5 lbs. (1.1 kg)
PATENTED
SPARE PARTS KITS
NO. 011 9113 03
FOR AP-2, AG-2, P-2 2-30 RANGE
AND 30 PP-1 AND 30 PPF-1 PANELS
NO. 011 9113 01
FOR AP-2, AG-2, P-2, PF-2 3-60 & 30-150
RANGES AND 60 & 150 PP-1 AND 60-150
PPF-1 PANELS
NO. 011 9113 02
FOR FILTER ONLY
SPARE PARTS ARE FURNISHED IN KITS IN QUANTITIES SHOWN IN TABLE BELOW
011911301 011911303 011911302 PART
NO. PART NAME
KIT REF.
NO.
QTY. REF. NO. QTY. REF. NO. QTY. REF. NO.
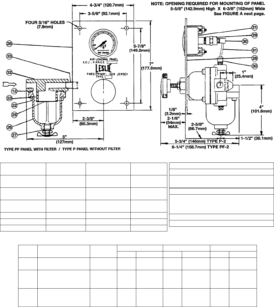
11
12
Diaphragm Compl.
Gasket
(8)
2
2
52992
56507
2
2
52992
56459
10
52992
--
14
16
17
Pilot Plate
Valve Seat
O-Ring, Valve Seat
1
2
52899
52676
2
1
2
51162-94
52899
52676
2 51162-94
--
--
--
18
20
23
Main Valve Complete
Main Valve Spring
Filter
(3)
2
2
--
54488
52706
2
2
--
54488
52706
10
52936
--
--
NOTE 3 – Main Valve is furnished complete with o-Ring, Part No. 19.
NOTE 8 – Diaphragm complete includes Diaphragm, Diaphragm Disc and Nozzle.
SEE PG. 4 & 5 FIR AIRMATE LOADERS
TYPE
AIR LOADER
RANGE
GAGE
CALIBRATION
AIR
LOADER
P-2
PF-2
2-30 0-30 AP-2(2-30)
P-2
PF-2
3-60 0-60 AP-2(3-60)
P-2
PR-2
30-150 0-160 AP-2(30-150)
30 PP-1 & PPF-1 2-300-30 AP-2(-30)
60 PP-1 & PPF-1 3-60 0-60 AP-2(3-60)
150 PP-1 & PPF-1 30-150 0-160 AP-2(30-150)









