Installation Instructions
Manuals
Brands
Liebherr Manuals
Bottom Freezer Refrigerators
Liebherr 30" Stainless Steel Bottom Freezer Refrigerator
1
2
3
4
5
6
7
8
9
10
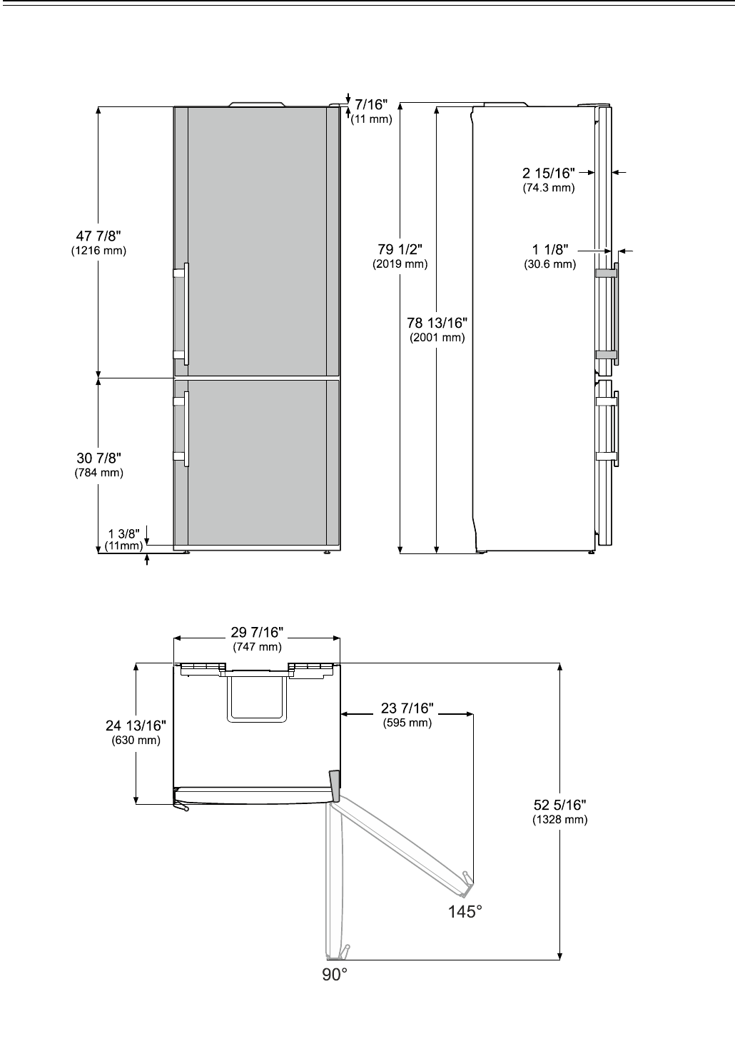
Appliance Dimensions
4
p
lannIng
I
nforma
tIon
Over
all height of the appliance can be increased
by a maxim
um of 5/8” (see Le
veling the appliance).
1
...
2
3
4
5
6
...
...
15