User Guide

Lytecaster
®
Recessed Downlighting 2008
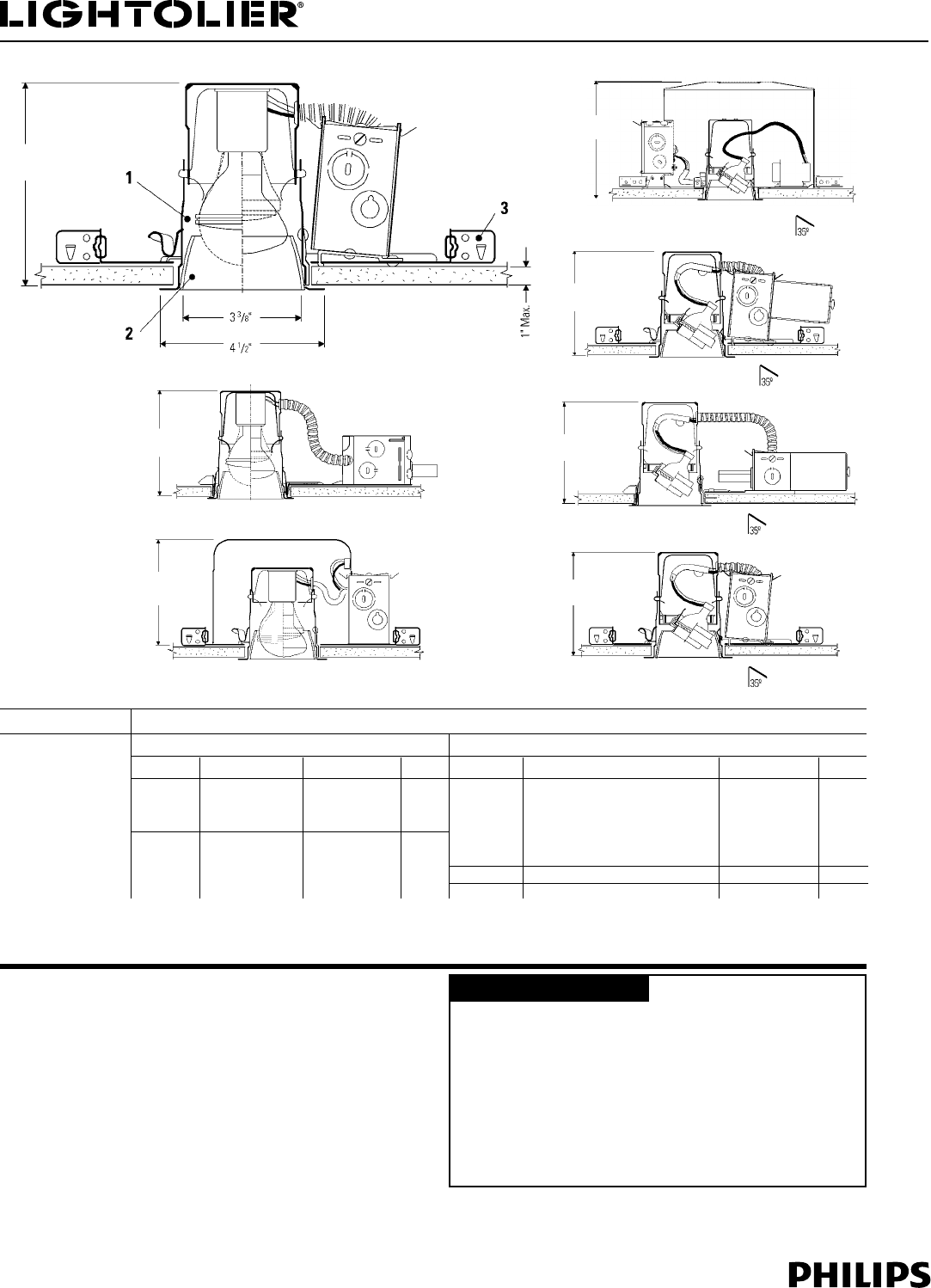
Page 1 of 2 3 3/4” Aperture Cone Reflector Trim
631 Airport Road, Fall River, MA 02720 • (508) 679-8131 • Fax (508) 674-4710
We reserve the right to change details of design, materials and finish.
www.lightolier.com © 2008 Philips Group • C0808
Job Information Type:
Job Name:
Cat. No.:
Lamp(s):
Notes:
Lightolier is a Philips group brand
2008/2000LVNT
Remote Transformer
5 3/8”
2008/2000LVR
Remodeler Low Voltage
2008/2002P1 Series
Standard Incandescent
2008/2004ICV/N
0
™
AirSeal
®
Insulated Ceiling
7 1/4”
5 3/8”
5 1/2”
2008/2000LV
Standard Low Voltage
2008/2003R
0
™
NON-IC
Remodeler Ring
5 3/8”
5 1/2”
5 3/8”
2008/2000IC
Insulated Ceiling
2008/2000AIC
Insulated Ceiling
AirSeal
®
Features
1. Reflector: Hydroformed aluminum, .040" thick (18 ga.); white or Natural
Metal™ trim flange.
2. Cone: Aluminum cone painted anodized finish.
3. Frame-In Kit: (2002P1 standard frame shown) Other frame shown on the
right. See Frame-In Kit specification sheet for more detail.
Options & Accessories
Lytegems
®
: See 1300 Series Specification Sheets.
Retaining Clips: 1955 - For Installing in Existing Ceiling
Labels
UL (Suitable for Damp Locations), I.B.E.W
US Patent Numbers: 5,045,985
Other US & Foreign Patents Pending.
Complete Fixture consists of Reflector Trim & Frame-In Kit. Select each separately.
Reflector Trim Frame-In Kit — See Individual Frame-In Kit Specification Sheets
Line Voltage Low Voltage
Frame-In Kit Install Type Lamping Height Frame-In Kit Installation Type Lamping Height
2008* Brushed Gold 40W A19** 2000LV Standard Non-IC 5 3/8"
2010* Brushed Clear 2002P1 Standard Non-IC 75W R20, PAR16 5 1/2" 2000LVR Remodeler Non-IC 5 3/8"
2012* Specular Gold
2003R Std. Non-IC Rem. 50W PAR20 5 3/8" 2000LVE1 Electronic Low Voltage Non-IC 120V 20W-50W MR16 5 3/8"
2013* Specular Clear
2000LVE2 Electronic Low Voltage Non-IC 277V 5 3/8"
2013CD* Clear Diffuse 2000IC IC 50W R20, PAR20 5 9/32" 2004ICV/N Lytening AirSeal
®
IC 7 1/4"
2013BK* Specular Blk 2000AIC AirSeal
®
IC 45W PAR16 5 9/32" 2000LVNT Low Voltage Remote Transformer 20W-42W MR16 5 3/8"
2013WH Matte White 2000AICV Lytening AirSeal
®
IC 20W-35W MR16 5 9/32"
*Add “NM” to SKU for Natural Metal™ Flange
** 60W A19 with 2003R


