User Guide

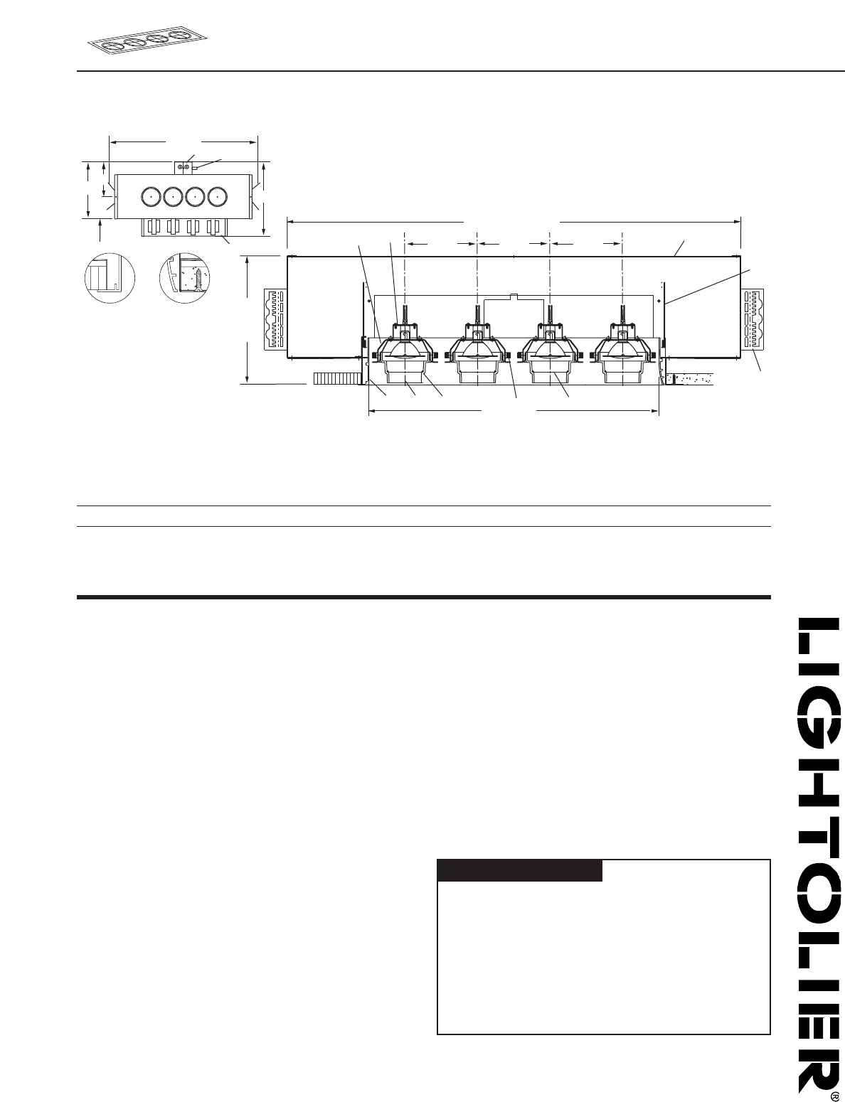
Ceiling Cutout: 21 1/16" L x 6 3/16" W
Ordering Information: AR 70 Series A
Cat. No. Lamp Ceiling Trim Aperture Finish
PA4A7050BL (4) 50W AR 70 Overlap Black with White Flange
PA4A7050WL (4) 50W AR 70 Overlap White with White Flange
PA4A7050BTL (4) 50W AR 70 Trimles Black
PA4A7050WTL (4) 50W AR 70 Trimles White
PA4A7050BL = (Flanged) Black/White
PA4A7050WL = (Flanged) White
PA4A7050BTL = (Trimless) Black
PA4A7050WTL = (Trimless) White
Top View
Flanged
Trimless
17"
34 1/8"
8"
13"
5"
31 3/8" L X 10" W
O.C.
O.C.
5"
O.C.
5"
20" L X 5" W
Depth
8 3/4"
1
23
4
5
6
7
8
9
10
11
12, 13
13
5"
Calculite
®
ProSpec
®
Linear Downlight PA4A7050
Page 1 of 2 4 Light AR 70 Series A
Job Information Type:
Job Name:
Cat. No.:
Lamp(s):
Notes:
Lightolier a Genlyte Thomas Company www.lightolier.com
631 Airport Road, Fall River, MA 02720 • (508) 679-8131 • Fax (508) 674-4710
We reserve the right to change details of design, materials and finish.
© 2002 Genlyte Thomas Group LLC (Lightolier Division) • A0902
Features
1. Aperture Frame: Provides clean support for lamp holders and overlapping
flange or trimless installation. Extruded aluminum. Rigidly welded together
on all corners.
2. Media Cartridge: Allows convenient loading and removal of up to two
accessories (including lamp cover glass; lamp cover glass may be replaced
with solid glass accessory). Easily installed and removed for lamping with a
simple twisting motion. Constructed of die-cast aluminum.
3. Cross Blade Louver: Extruded aluminum. 1" deep, provides additional
shielding and can be easily removed.
4. Adjustable Ring: Allows 360° horizontal and 35° (on width) and 45° (on
length) vertical adjustment.
5. Tortiontite Spring: For easy installation of aperture frame.
6. Housing: Die-formed 22 ga. steel. Finish: Black.
7. Mounting Brackets: Adjustable vertically from outside of housing.
8. Thermal Protector: Meets NEC, UL , and CSA requirements.
9. Lampholder: double contact bayonet base with 250°C #18 gauge Teflon
®
leads.
10. Junction Box: 14 ga. steel, 4" x 3 1/2" x 2" box. Allows inspection from
below.
11. Lamp and Accessory Support: .032" steel, flared for easy entry of Media
Cartridge.
12. Lens Retaining Ring: .093" spring steel rod. Holds accessories in place.
13. Lamp Guard: Heat-resistant clear glass. Lamp manufacturers requirement.
14. Transformer Housing: Die-formed 18 ga. steel.
Electrical
Magnetic Transformer: Individual for each lamp. Offers reliable operation and
is accessible from below for servicing. 120V Primary; 11.5V Secondary.
Dimming Controls: Use only dimmers specifically designed for use with
magnetic transformers, like Lightolier Onset series LV or VA dimmers, or any
Lightolier Control dimming system. Low Voltage fixtures may produce audible
sound when used with dimmers, which may be objectionable in acoustically
critical areas.
Electrical (continued)
UL/cUL listed for through branch circuit wiring with maximum of (8) no. 12 AWG,
90°C.
Finish
All painted finishes are powder coated baked enamel.
Options & Accessories
Accessories: 2 1/2" dia. series, filters, lenses, screens and louvers. (2)
accessories maximum, including lamp cover glass. Lamp guard glass may be
replaced with solid glass accessory.
Labels
UL/cUL (Suitable for Damp Location), I.B.E.W.
Teflon
®
is a registered trademark of E.I. DuPont.
US Patent Pending.


