User Guide

Job Information Type:
Job Name:
Cat. No.:
Lamp(s):
Notes:
Spectral Architectural Lighting SL403A
Page 1 of 2 Zylinder Wall Optic Forms 1-150W T7 Ceramic Metal Halide
Lightolier a Genlyte company www.lightolier.com
631 Airport Road, Fall River, MA 02720 • (508) 679-8131 • Fax (508) 674-4710
We reserve the right to change details of design, materials and finish.
© 2005 Genlyte Group LLC • B0605
01-03
Zylinder Wall Spectral
Optic Forms Architectural Lighting
1-150W T7 Ceramic Metal Halide
Ordering Guide (complete unit only)
Cat. No. Lamp Volts Finish
SL403AH1
120V (electronic)
SL403AH2
277V (electronic)
SL403AHT
120/277/347V (mag)
Features Electrical
Optical System : Single lamp powers an upper wide spaced indirect optic and a lower Lampholder : RX7s, double-ended base.
narrow spaced direct sand-blasted optic. Glass shield redirects light into the space.
Electronic Ballast : Electronic Ceramic MH ballast maintains constant
Upper wide spaced spun Alzak optic with clear glass micro switch protected. Narrow lamp characteristics throughout the life of the lamp and through a wide
spacing spun Alzak downlight optic. Bottom glass sandblasted outer ring with clear range of operating voltages. Ballasts available for 120 volts and 277
centre. volts operation. No universal ballast option.
Stainless Steel Construction : Quality all stainless steel form and hardware. Microswitch : Remote, turn off electricity during maintenance into the
Hardware : Exposed hardware adds high design element to the form.
lamp compartment.
Ballast Compartment : Perforeated stainless steel construction with removeable ballast H1 : Electronic Ceramic MH / CMH 120V
cover Hollow rods shield wiring to optical chamber.
H2 : Electronic Ceramic MH / CMH 277V
Optical Chamber : Circular brushed stainless steel construction and all stainless steel Magnetic Ballast : CWA (Constant Wattage Autotransformer) with
hardware. triple tap 120/277/347 volts operation. Ballast maintains steady lamp
Ceramic Lamp Source : CMH lamp source assures stable color over the life of the lamp and
operating characteristics for longer lamp life and color stability.
longer lamp life.
HT : Magnetic CWA MH 120/277/347V
Wall Plate : Stainless steel construction with additional holes for securing the installation
and provided with an overlapping support for Ballast Compartment.
Options and Accessories
Flange : Stainless steel that separate Wall Plate and Ballast Compartment.
For pendant unit, see Zylinder Glas SL402.
Fuse : 2 Amps internal fusing. Consult your Lightolier representative.
Mounting
Add code (-F1) for 120 volts, (-F2) for 277 volts or (-F3) for 347
Mounting : Suitable for mounting on standard octogonal box. Must be held in place by
volts.
additional hardware to support heavy weight luminaire.
Luminaire Weight : 12.5 lbs (magnetic), 9 lbs (electronic).
Finish
Stainless steel : Brushed high quality stainless steel alloy.
Labels
UL "c/us" Listed. For dry locations only.
WE RESERVE THE RIGHT TO CHANGE DETAILS OF DESIGN, MATERIALS AND FINISH, IN ANY WAY
THAT WILL NOT ALTER INSTALLED APPEARANCE OR REDUCE FUNCTION AND PERFORMANCE.
Lightolier Canada, 3015 Louis Amos Lachine, (Quebec) H8T 1C4
1-150W T7 CMH (M142) (clear) Stainless Steel & Etched Glass
SL403A
Features
1. Optical System: Single lamp powers an upper wide spaced indirect optic
and a lower narrow spaced direct sand-blasted optic. Glass shield redirects
light into the space. Upper wide spaced spun Alzak
®
optic with clear glass
micro switch protected. Narrow spacing spun Alzak
®
downlight optic. Bottom
glass sandblasted outer ring with clear centre.
2. Stainless Steel Construction: Quality all stainless steel form and
hardware.
3. Hardware: Exposed hardware adds high design element to the form.
5. Ballast Compartment: Perforated stainless steel construction with
removeable ballast cover Hollow rods shield wiring to optical chamber.
6. Optical Chamber: Circular brushed stainless steel construction and all
stainless steel hardware.
7. Ceramic lamp source: CMH lamp source assures stable color over the life
of the lamp and longer lamp life.
8. Wall Plate: Stainless steel construction with additional holes for securing
the installation and provided with an overlapping support for Ballast
Compartment.
9. Flange: Stainless steel that separate Wall Plate and Ballast Compartment..
Mounting
Mounting: Suitable for mounting on standard octogonal box. Must be held in
place by additional hardware to support heavy weight luminaire.
Luminaire Weight: 12.5 lbs. (magnetic), 9 lbs. (electronic)
Electrical
Lampholder: RX7s, double-ended base.
Electronic Ballast: Electronic Ceramic MH ballast maintains constant lamp
characteristics throughout the life of the lamp and through a wide range of oper-
ating voltages. Ballasts available for 120 and 277 volts operation. No universal
ballast option.
Microswitch: Remote, turn off electricity during maintenance into the lamp
compartment.
Electrical (continued)
H1: Electronic Ceramic MH / CMH 120V
H2: Electronic Ceramic MH / CMH 277V
Magnetic Ballast: CWA (Constant Wattage Autotransformer) with triple tap
120/277/347 volts operation. Ballast maintains steady lamp operating character-
istics for longer lamp life and color stability.
HT: Magnetic CWA MH 120/277/347V
Options and Accessories
For pendant unit, see Zylinder Glas SL402.
Fuse: 2 Amps internal fusing. Consulting your Lightolier representative.
Add code (-F1) for 120 volts, (-F2) for 277 volts or (-F3) for 347 volts.
Finish
Stainless steel: brushed high quality stainless steel alloy.
Labels
UL “c/us” Listed. For dry locations only.
Ordering Guide (complete unit only)
Cat. No. Lamp (Clear) Volt Finish
SL403AH1 1-150W T6 CMH (M142) (clear) 120V (electronic) Stainless Steel & Etched Glass
SL403AH2 1-150W T6 CMH (M142) (clear) 277V (electronic) Stainless Steel & Etched Glass
SL403AHT 1-150W T6 CMH (M142) (clear) 120/277/347V (magnetic) Stainless Steel & Etched Glass
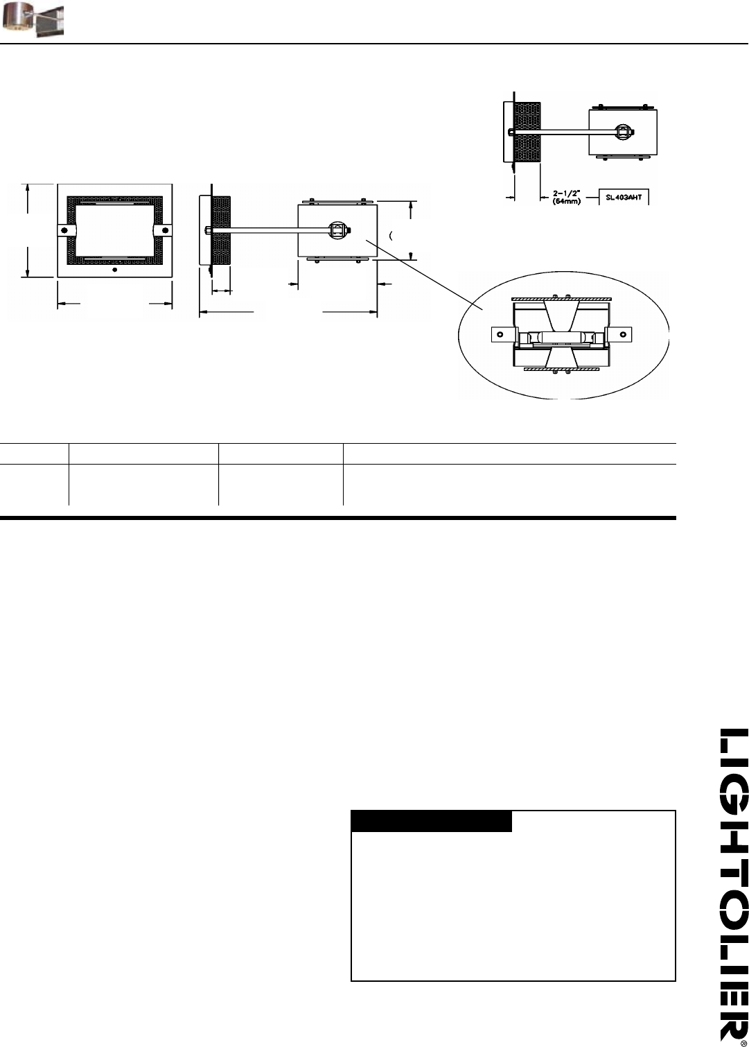
9 1/4"
(235 mm)
15 1/4"
(387 mm)
10 1/4"
(260 mm)
5 7/8"
(150 mm)
1 1/2"
(38 mm)
01-03
Zylinder Wall Spectral
Optic Forms Architectural Lighting
1-150W T7 Ceramic Metal Halide
Ordering Guide (complete unit only)
Cat. No. Lamp Volts Finish
SL403AH1
120V (electronic)
SL403AH2
277V (electronic)
SL403AHT
120/277/347V (mag)
Features Electrical
Optical System : Single lamp powers an upper wide spaced indirect optic and a lower Lampholder : RX7s, double-ended base.
narrow spaced direct sand-blasted optic. Glass shield redirects light into the space.
Electronic Ballast : Electronic Ceramic MH ballast maintains constant
Upper wide spaced spun Alzak optic with clear glass micro switch protected. Narrow lamp characteristics throughout the life of the lamp and through a wide
spacing spun Alzak downlight optic. Bottom glass sandblasted outer ring with clear range of operating voltages. Ballasts available for 120 volts and 277
centre. volts operation. No universal ballast option.
Stainless Steel Construction : Quality all stainless steel form and hardware. Microswitch : Remote, turn off electricity during maintenance into the
Hardware : Exposed hardware adds high design element to the form.
lamp compartment.
Ballast Compartment : Perforeated stainless steel construction with removeable ballast H1 : Electronic Ceramic MH / CMH 120V
cover Hollow rods shield wiring to optical chamber.
H2 : Electronic Ceramic MH / CMH 277V
Optical Chamber : Circular brushed stainless steel construction and all stainless steel Magnetic Ballast : CWA (Constant Wattage Autotransformer) with
hardware. triple tap 120/277/347 volts operation. Ballast maintains steady lamp
Ceramic Lamp Source : CMH lamp source assures stable color over the life of the lamp and
operating characteristics for longer lamp life and color stability.
longer lamp life.
HT : Magnetic CWA MH 120/277/347V
Wall Plate : Stainless steel construction with additional holes for securing the installation
and provided with an overlapping support for Ballast Compartment.
Options and Accessories
Flange : Stainless steel that separate Wall Plate and Ballast Compartment.
For pendant unit, see Zylinder Glas SL402.
Fuse : 2 Amps internal fusing. Consult your Lightolier representative.
Mounting
Add code (-F1) for 120 volts, (-F2) for 277 volts or (-F3) for 347
Mounting : Suitable for mounting on standard octogonal box. Must be held in place by
volts.
additional hardware to support heavy weight luminaire.
Luminaire Weight : 12.5 lbs (magnetic), 9 lbs (electronic).
Finish
Stainless steel : Brushed high quality stainless steel alloy.
Labels
UL "c/us" Listed. For dry locations only.
WE RESERVE THE RIGHT TO CHANGE DETAILS OF DESIGN, MATERIALS AND FINISH, IN ANY WAY
THAT WILL NOT ALTER INSTALLED APPEARANCE OR REDUCE FUNCTION AND PERFORMANCE.
Lightolier Canada, 3015 Louis Amos Lachine, (Quebec) H8T 1C4
1-150W T7 CMH (M142) (clear) Stainless Steel & Etched Glass
SL403A
7 1/8"
(181 mm)


