Logic SCSI to PCI Host Adapter User's Guide
Table Of Contents
- Ultra160 SCSI to PCI Host Adapters
- Preface
- Contents
- Chapter1 Quick Installation Procedures
- Chapter2 Detailed Host Adapter Installation
- Chapter3 Ultra160 SCSI to PCI Host Adapter Characteristics
- 3.1 Ultra160 SCSI to PCI Boards
- 3.2 Host Adapter Characteristics
- 3.3 Cabling SCSI Devices
- 3.4 Technical Specifications
- AppendixA Glossary of Terms and Abbreviations
- Index
- Customer Feedback

Host Adapter Characteristics 3-9
3.2.7 LSI21040 Host Adapter
The LSI21040 PCI to Dual Channel Ultra160 SCSI host adapter
(Figure 3.7) provides 16-bit LVD and SE solutions for your computer.
Channel A supports LVD/SE modes of operation, while channel B
supports only the SE mode.
The LSI21040 board has these features:
• Ultra160 SCSI for channel A to 160 Mbytes/s per data transfer; Ultra
SCSI SE for channel B to 40 Mbytes/s per data transfer
• Four connectors
– One external 68-pin high density connection
– Two internal 68-pin high density connections
– One internal 50-pin low density legacy connections for channel B
• LVD/SE termination on channel A automatically; SE termination on
channel B automatically
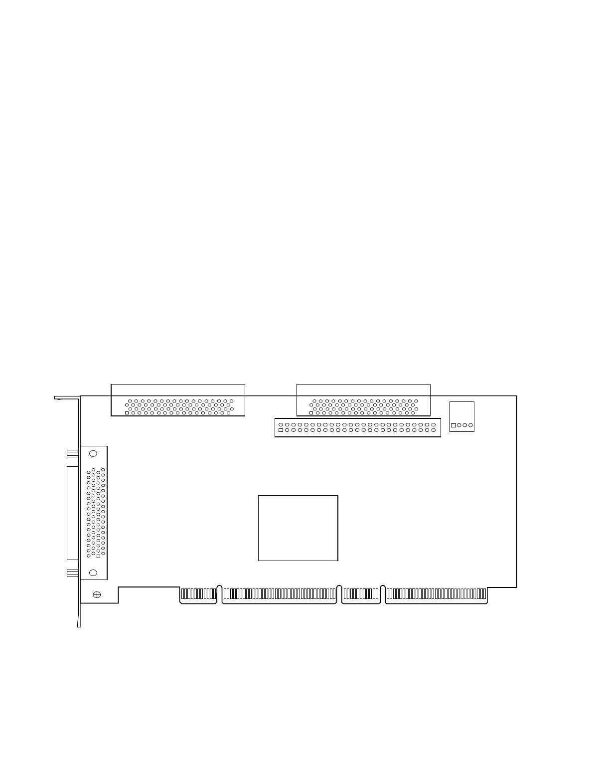
Figure 3.7 LSI21040 Mechanical Drawing
J1T - PCI
Note:
• J1: PCI 64-bit, universal type board edge connector.
• J2 and J4: 68-pin high density shielded latching right-angle internal connectors.
• J3: 68-pin high density shielded right-angle external connector.
• J5: 50-pin low density shrouded vertical internal connector.
• J6: 4-pin low density unshrouded right-angle LED connector.
• Subsystem Vendor ID is 1000.
• Subsystem ID is 1040.
LSI53C1010
J4
J2
J5
J6-LED
Channel A - Ultra160 SCSI LVD/SE
J3
Channel A
J2 Channel B - Ultra Wide SCSI SE
J5 Channel B - Ultra, Fast, and SCSI-1 SE
Ultra160 SCSI LVD/SE










