Operating instructions

8
INSTALLING THE DMC3-4
3-wire or 4-wire Confi guration Jumper Setting
The DMC3-4 ships confi gured for a 3-wire retrofi t system.
If you are replacing a 4-wire system you must change
the jumper setup on the DMC3-4 Master Station. The
jumper change must be completed before any cables are
connected. To change the jumpers pull them off the 3-wire
connector pins and place them onto the 4-wire connector
pins (see Figure 14).
Station Connections
During installation, suspend the master unit from the wall
housing by looping the “third hand” wire (thick green wire)
over the hook at the top of the housing (see Figure 15). Be
careful not to damage the wall surface.
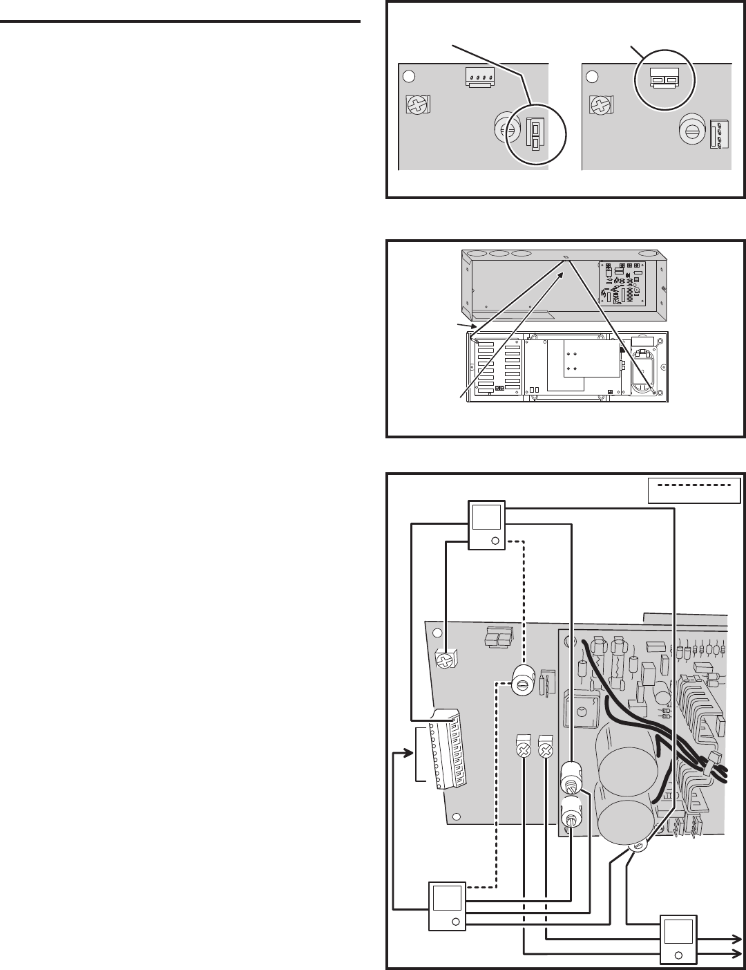
Room Stations and Patio Stations
1. Connect each GREEN wire (except patio GREEN) to a single RM#
green wire terminal on the master. Each numbered RM# green wire
terminal corresponds to a remote station selector switch. Refer to
Figure 16 for wire placement.
✔ NOTE: If the DMC3-4 system has more than 9 room stations, some
room selector switches will control two room stations.
✔ NOTE: No more than three GREEN wires can be connected to any
RM# GREEN wire terminal and not to exceed 15 stations for the
4-wire or 13 stations for the 3-wire system. This limitation does not
include door stations.
2. The station location can be marked on the inside of the door access
panel on the left side of the DMC3-4 Master Station.
3. Connect the GREEN wire(s) from the patio station(s) to the PATIO
green wire terminal.
4. Connect the patio BLACK wire(s) to the patio BLACK terminal.
✔ NOTE: Only two patio stations can be connected to the patio terminals.
5. Combine the room station BLACK wires and connect to the BLACK
terminal.
6. Combine the room and patio station RED wires and connect to the
RED terminal.
7. Combine the room and patio station WHTE wires and connect to the
the WHITE terminal. (4-Wire installations only.)
8. When using shielded wire with drain wires, insulate the bare wires
using some of the jacket material to prevent shorting to the circuit
board. Combine all the drain wires and connect to the SHIELD
terminal.
Door Station Connections
1. Connect the RED and BLACK wires of the door station cables to
the RED and BLACK door station terminals on the DMC3-4 Master
Station (see Figure 16).
2. Connect all ORANGE wires from the door stations to the COMMON
terminal on the MC3 or MC8 chime module.
3. Connect each YELLOW wire to a chime module NOTE selection
terminal. (Do not connect more than one yellow wire per note terminal.)
Figure 14. 3-Wire / 4-Wire Selection Jumper
DMC1H OR
DMC1HC
WALL HOUSING
DMC1
MASTER
USE GREEN
WIRE TO HANG
MASTER DURING
HOOKUP
"THIRD HAND"
WIRE
Figure 15. “Third Hand” Hanging Wire
Figure 16. Room, Patio, & Door Station Connections
BLACK
WHITE
4-WIRE
3-WIRE3-WIRE
4-WIRE
BLACK
WHITE
DEFAULT 3-WIRE POSITION 4-WIRE POSITION
FOR
3-WIRE
INSTALLATIONS
LEAVE JUMPERS IN DEFAULT
POSITION
FOR
4-WIRE
INSTALLATIONS
MOVE JUMPERS TO THIS
POSITION
TERMINAL END OF
DMC3-4 BOARD
TERMINAL END OF
DMC3-4 BOARD
PATIO
RM 9
RM 8
RM 7
RM 6
RM 5
RM 4
RM 3
RM 2
RM 1
PATIO
BLACK
WHITE
DOOR
STATION
RED BLACK
RED
BLACK
SHIELD
GREENS
DMC3-4
CIRCUIT BOARD
PATIO
STATIONS
4-WIRE ONLY
ROOM
STATIONS
DOOR
STATIONS
TO CHIME
MODULE
GREEN
WHITE
BLACK
RED
SHIELD
SHIELD
ORANGE
YELLOW
BLACK
RED
GREEN
BLACK
SHIELD
RED
WHITE
CONNECT
TO ROOM
STATION #
TERMINAL
NOTE: SHIELDS CONNECT
ON THE MASTER STATION
ENDS OF THE CABLES ONLY










