Installation Manual
Table Of Contents
- 1.0 Introduction
- 2.0 Installation
- 2.1 Preparation
- 2.2 Location
- 2.3 Conduit Knockouts
- 2.4 Mounting
- 2.5 Wiring the MMP Enclosure – General Requirements
- 2.6 Torque Requirements
- 2.7 Electrical System Wiring Diagrams
- 2.8 DC Wiring
- 2.9 AC Wiring
- 2.10 MMP/Inverter System Grounding
- 2.11 Removing the AC Neutral to Ground Connection
- 2.12 Removing the DC Negative to Ground Busbar
- 2.13 Wiring Accessories
- 2.14 Installation Checklist
- 2.15 Functional Test
- 3.0 Operation
- Appendix A – Optional Equipment and Accessories
- Appendix B – Using the MMP in a Mobile Application
- Appendix C – Warranty and Service

© 2013 Magnum Energy, Inc.Page 58
Appendix A - Optional Equipment and Accessories
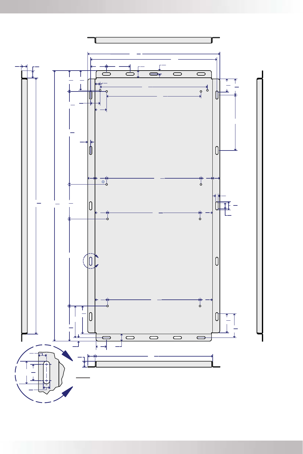
Figure A8-1, MMP Back Panel (BP-MMP) Information
16
3
4
16
5
8
2
3
15
16
7
16
3
4
11
11
16
1
1
16
2
15
16
11
5
8
13
7
5
16
15
16
3
4
1
16
1
15
16
11
3
4
11
1
2
1
9
16
1
9
16
1
1
16
3
7
16
2
5
16
1
7
16
4
1
2
3
4
11
15
16
7
16
9
16
1
9
16
1
1
2
1
15
16
1
2
1
1
16
3
5
8
2
3
16
1
3
8
1
2
2
3
16
34
3
8
4
3
4
11
7
8
14
5
16
3
4
15
16
3
4
3
8
32
B
B
B
B
B
B
B
B
B
B
A
3
8
1
1
3
3
4
Detail A
Notes:
1. All dimensions are in inches.
2. Material = 16 gauge steel.
3. Finish = Powder coat white.
4. Detail B (x10) = PEM Nut (1/4-20).
5. Weight: 10.5 lbs. (4.8 kg).
6. Includes ten 1/4-20 x 3/4” Hex bolts; for mounting the MMP
enclosure, a Magnum Energy inverter, and the inverter hood.
7. The outside holes on the left and right side measure 16”
center-to-center. This allows the mounting plate to be secured to
wall studs 16” apart. If the wall studs are 24” apart, a minimum
3/4” plywood board should be used to secure the backplate to
the wall studs.
A8 MMP Back Panel Information