Specifications
–175–
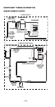
Q1400C/QDUALC
COMPRESSOR
LIQUID LINE
SHUT-OFF
VALVE
CVD1476 ONLY
Water
Regulating
Valve
LLSV
EVAPORATOR
HEAT EXCHANGER
CONDENSER
SUCTION
FILTER
CHECK VALVE
RECEIVER
DRIER
HEAD
PRESSURE
CONTROL
VALVE
ACCUMULATOR
COOL
VAPOR
VALVE
SUCTION
SHUT-OFF
VALVE
EVAPORATOR
TXV
COOL
VAPOR
VALVE
CVD1476 ONLY
Condenser
Water Outlet
S Trap Required 21’
or Greater Rise
RECEIVER
SERVICE
VALVE
Condensing Unit










