Indoor Fireplace User Manual

11
NOTE: DIAGRAMS & ILLUSTRATIONS ARE NOT TO SCALE.
Cap
Flashing
Outside Air Pipe
Listed Pellet Pipe or
Flex Liner
Storm Collar
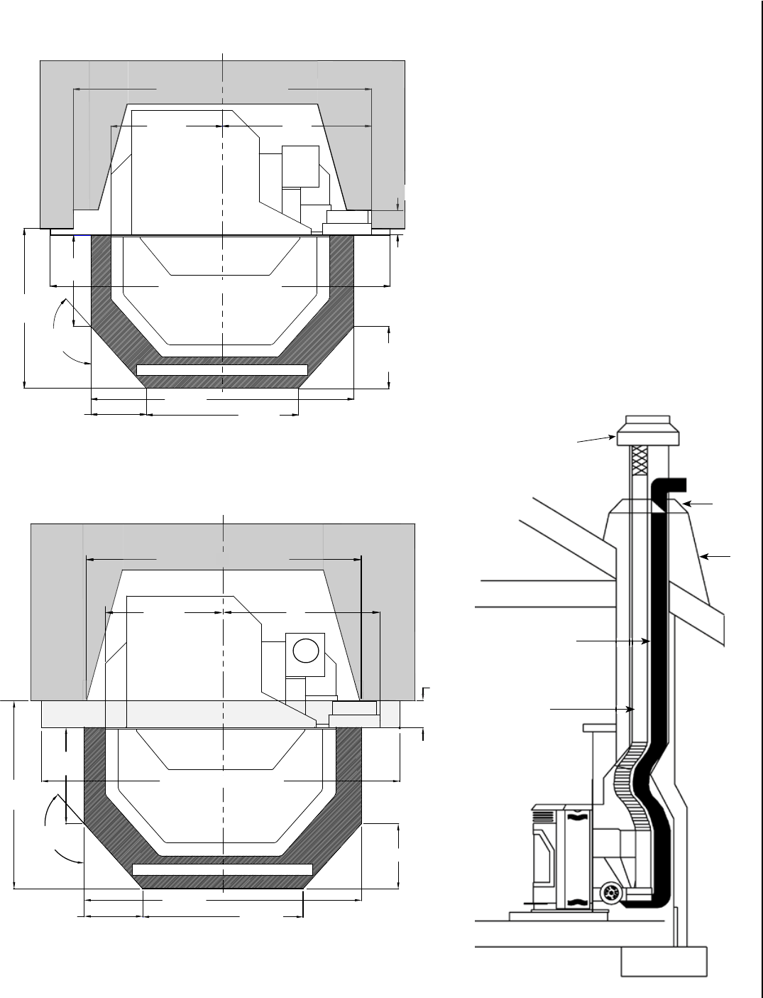
Figure 12
CONTROL BOARD
36" FIREPLACE OPENING
18"
13-1/2"
FIREPLACE OPENING C/L
19-1/4"
18-3/8"
HEARTH / FLOOR PROTECTION
31-3/4"
11"
7-7/16"
6-11/16"
138°
41" SURROUND WIDTH
2-15/16"
Figure 11B
Mobile Home Installations
The following steps are required for installation of the Winslow™
PI40 insert in mobile homes. See Figure 12.
1. Connecting the Winslow PI40 insert to outside combustion
air is optional, except in mobile home installations and when
required by local building codes. The insert’s air intake will
accept 2” ID pipe to accommodate outside air installations.
The air intake on the exterior of the home should always
be located substantially below the flue termination and
terminate with a cover to keep out weather and pests.
2. The insert must be fastened to the hearth/floor using lag
screws. The screws can be inserted through the holes in
the base located behind the side doors. If the hearth is
concrete or masonry, use proper lag bolts and methods
designed for anchoring to masonry or concrete.
3. The insert must be grounded with a #8 or larger copper
wire.
WARNING: DO NOT INSTALL THIS INSERT IN A SLEEP-
ING ROOM IN A MANUFACTURED HOME.
CAUTION: THE STRUCTURAL INTEGRITY OF THE
MANUFACTURED HOME FLOOR, WALL, AND CEIL-
ING/ROOF MUST BE MAINTAINED.
CONTROL
BOARD
18"
13-1/2"
FIREPLACE OPENING C/L
21-1/2"
18-3/8"
HEARTH/FLOOR PROTECTION
31-3/4"
11"
7-7/16"
6-11/16"
138°
3"
41" SURROUND WIDTH
32" FIREPLACE OPENING
DEEP
SURROUND
Figure 11C
Fireplace Installation Using Standard Surround Kits
(P/N 79004, 79005, 79006 and 79007)
Fireplace Installation Using 3 Inch Deep ZC Surround Kit
(P/N 79032 *)
* This black surround kit positions the insert 3” forward so that it will allow the insert to fit
into a fireplace with a narrower width in the front (32” min.). Note: No trim kits are avail-
able for this kit at this time. See instruction sheet P/N 506033-05 for more information.
Termination Cap










