Specifications
Manuals
Brands
McQuay Manuals
Air Conditioner
M4MSD
21
22
23
24
25
26
27
28
29
30
28
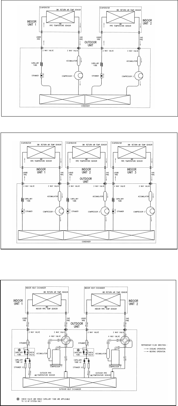
Refrigerant Circuit Diagram
Model :
MMSD 1010/ 1015/ 1515/ 1020/ 1520/ 2020A
M4MSD 1010/ 1015/ 1515A
Model : MMST/M4MST 101010/ 101015/ 101515/ 151515, MMST 101020A
Model :
MMSD 1010/ 1015/ 1515/ 1520AR
M4MSD 1010/ 10
15/ 1515A
1
...
...
27
28
29
30
31
...
...
57