Operating instructions

58D6002 11
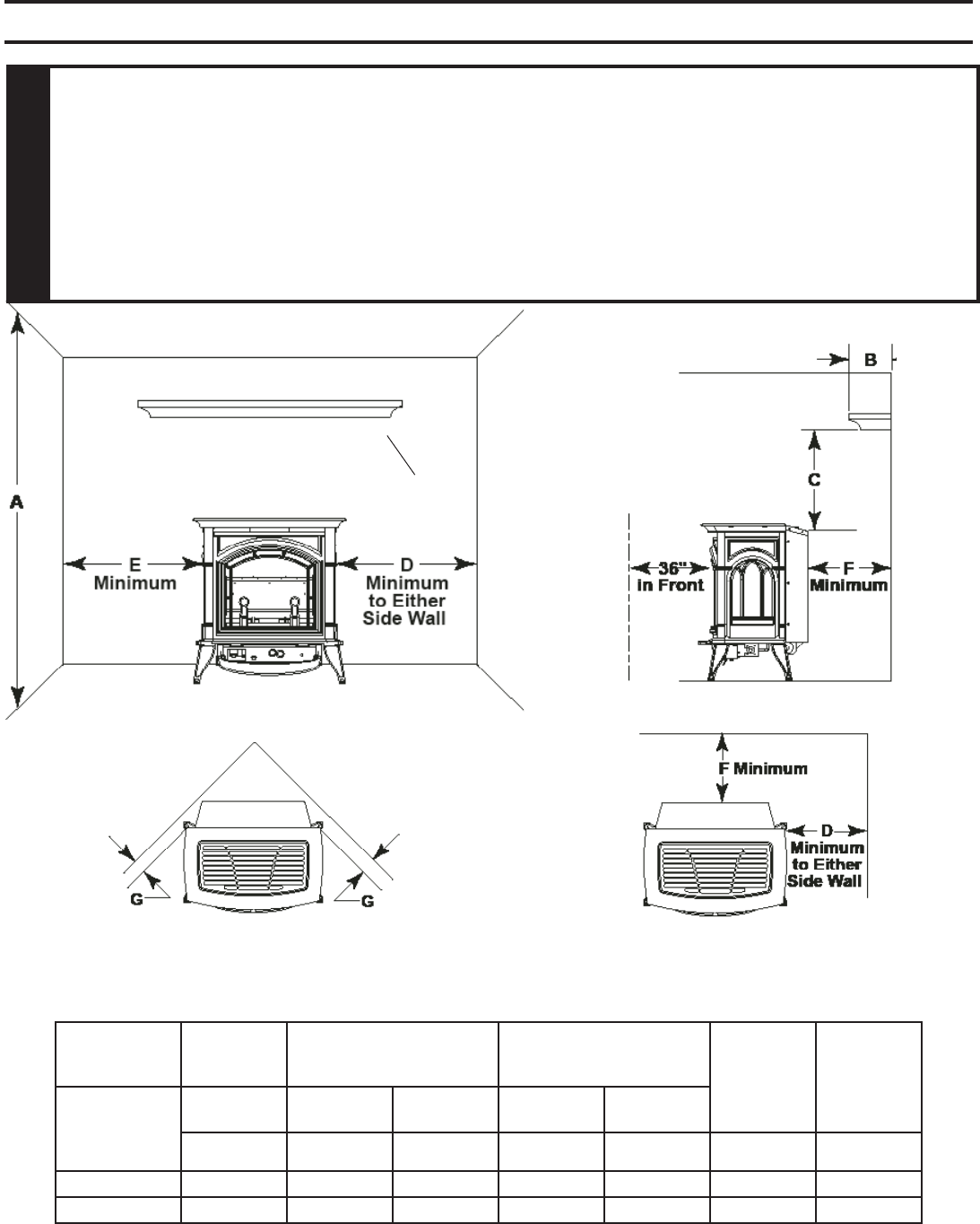
72" 12" 16" 1" 1" ½" 1½"
72" 12" 18" 2" 2" 1" ½"
Side
Wall
Mantel
Figure 5 - Minimum Clearance to Walls and Ceiling
Ceiling
Ceiling
Floor
Side
Wall
Floor
Figure 5










