Datasheet

Table Of Contents
© 2011 Microchip Technology Inc. DS70143E-page 27
dsPIC30F6011A/6012A/6013A/6014A
TABLE 3-1: PROGRAM SPACE ADDRESS CONSTRUCTION
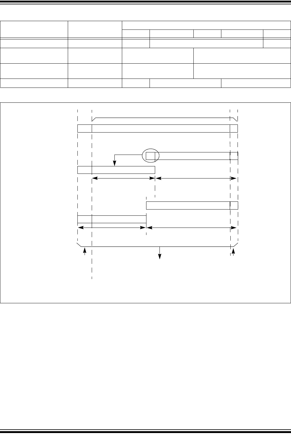
FIGURE 3-3: DATA ACCESS FROM PROGRAM SPACE ADDRESS GENERATION
Access Type
Access
Space
Program Space Address
<23> <22:16> <15> <14:1> <0>
Instruction Access User 0 PC<22:1> 0
TBLRD/TBLWT User
(TBLPAG<7> = 0)
TBLPAG<7:0> Data EA<15:0>
TBLRD/TBLWT Configuration
(TBLPAG<7> = 1)
TBLPAG<7:0> Data EA<15:0>
Program Space Visibility User 0 PSVPAG<7:0> Data EA<14:0>
0Program Counter
23 bits
1
PSVPAG Reg
8 bits
EA
15 bits
Program
Using
Select
TBLPAG Reg
8 bits
EA
16 bits
Using
Byte
24-bit EA
0
0
1/0
Select
User/
Configuration
Table
Instruction
Program
Space
Counter
Using
Space
Select
Visibility
Note: Program space visibility cannot be used to access bits <23:16> of a word in program memory.