Datasheet

Table Of Contents
dsPIC30F6011A/6012A/6013A/6014A
DS70143E-page 8 © 2011 Microchip Technology Inc.
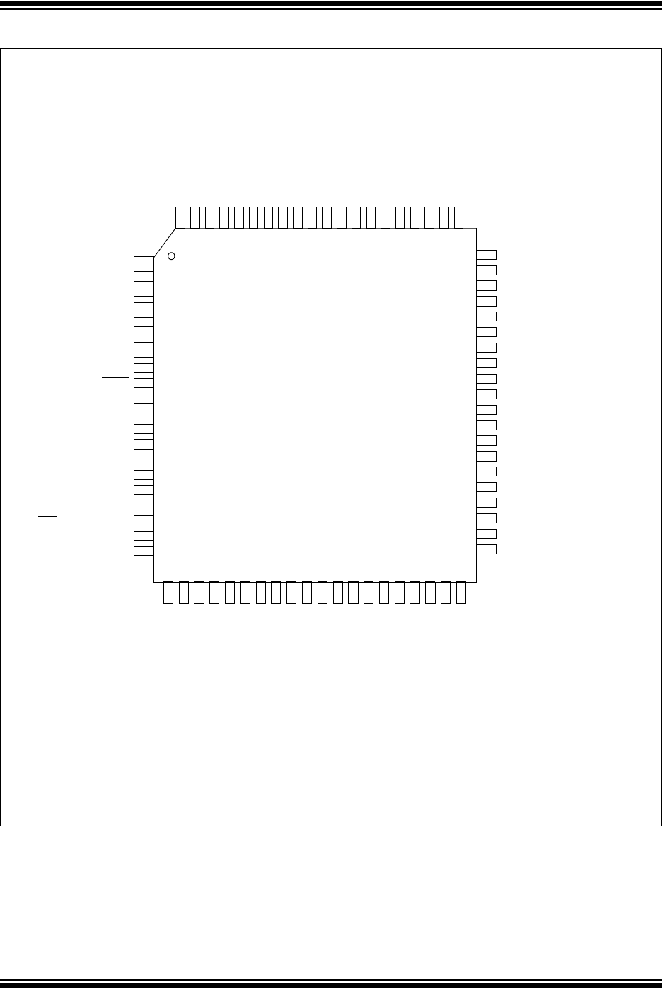
Pin Diagrams (Continued)
72
74
73
71
70
69
68
67
66
65
64
63
62
61
20
2
3
4
5
6
7
8
9
10
11
12
13
14
15
16
50
49
48
47
46
45
44
21
41
40
39
38
37
36
35
34
23
24
25
26
27
28
29
30
31
32
33
17
18
19
75
1
57
56
55
54
53
52
51
60
59
58
43
42
76
78
77
79
22
80
IC5/RD12
OC4/RD3
OC3/RD2
EMUD2/OC2/RD1
CSCK/RG14
C2RX/RG0
C2TX/RG1
C1TX/RF1
C1RX/RF0
CSDO/RG13
CSDI/RG12
OC8/CN16/RD7
OC6/CN14/RD5
EMUC2/OC1/RD0
IC4/RD11
IC2/RD9
IC1/RD8
INT4/RA15
IC3/RD10
INT3/RA14
V
SS
OSC1/CLKI
V
DD
SCL/RG2
U1RX/RF2
U1TX/RF3
EMUC1/SOSCO/T1CK/CN0/RC14
EMUD1/SOSCI/CN1/RC13
VREF+/RA10
V
REF-/RA9
AV
DD
AVSS
AN8/RB8
AN9/RB9
AN10/RB10
AN11/RB11
V
DD
U2RX/CN17/RF4
IC8/CN21/RD15
U2TX/CN18/RF5
AN6/OCFA/RB6
AN7/RB7
T3CK/RC2
T4CK/RC3
T5CK/RC4
SCK2/CN8/RG6
SDI2/CN9/RG7
SDO2/CN10/RG8
MCLR
SS2/CN11/RG9
AN4/CN6/RB4
AN3/CN5/RB3
AN2/SS1
/LVDIN/CN4/RB2
PGC/EMUC/AN1/CN3/RB1
PGD/EMUD/AN0/CN2/RB0
V
SS
VDD
COFS/RG15
T2CK/RC1
INT2/RA13
INT1/RA12
AN12/RB12
AN13/RB13
AN14/RB14
AN15/OCFB/CN12/RB15
V
DD
VSS
OC5/CN13/RD4
IC6/CN19/RD13
SDA/RG3
SDI1/RF7
EMUD3/SDO1/RF8
AN5/CN7/RB5
VSS
OSC2/CLKO/RC15
OC7/CN15/RD6
EMUC3/SCK1/INT0/RF6
IC7/CN20/RD14
80-Pin TQFP
dsPIC30F6014A
CN23/RA7
CN22/RA6