Datasheet

Table Of Contents
590
SAM7S Series [DATASHEET]
6175M–ATARM–26-Oct-12
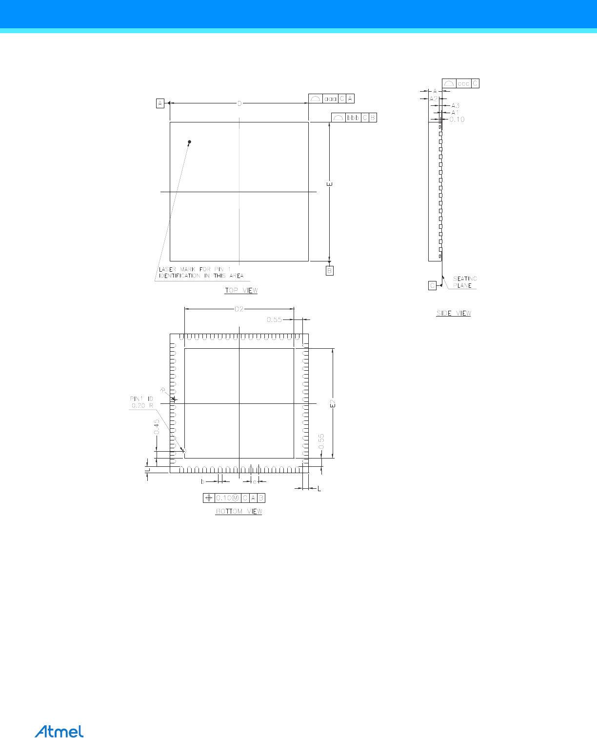
Figure 38-3. 64-pad QFN Package Drawing
ll dimensions are in mm
eference : JEDEC Drawing MO-220