User Manual

Part 1
Installation
Continued
For full input, refer too SPECIFICATIONS, page 2, for minimum gas pressure required. For
reduced capacities, refer to Firing Rate Curves, Table 2.
CAUTION: If gas supply pressure is below its specified range during adjustment,
an over-fire condition could result when pressure returns to normal, particularly if the
regulator adjustment screw is bottomed out. ALWAYS confirm that at least the mini-
mum rated pressure is being supplied during regulator adjustments, and NEVER BOT-
TOM OUT regulator screw.
When selecting the burner supply piping size per Table 1, the permissible pressure drop
must be based on the pressure available at the inlet to the supply pipe branch line when all
other gas equipment fed by the same source (NATURAL gas meter or PROPANE tank reg-
ulator) is firing at full rate. Also take into account any other INCINOMITE burners to be
attached to the same branch line.
When pressure testing the supply piping, the burner valve train must be protected. If the
test pressure is 0.5 PSIG or less, closing the Main Manual Shut-Off Valve will suffice.
CAUTION: If the test pressure is over 0.5 PSIG, the test must be made without any
burner components connected.
DANGER: EXPLOSION HAZARD. DO NOT USE OXYGEN FOR PRESSURE
TESTING. AN EXPLOSION COULD OCCUR DURING INITIAL START-UP.
5
Part 1 Installation
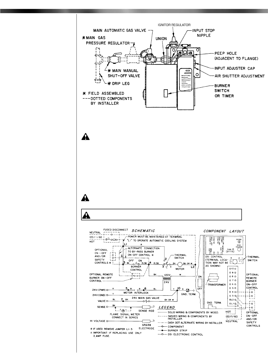
Figure 2: Control Components
Figure 3: Wiring Diagram










