Wiring Circuit Diagrams

Table Of Contents
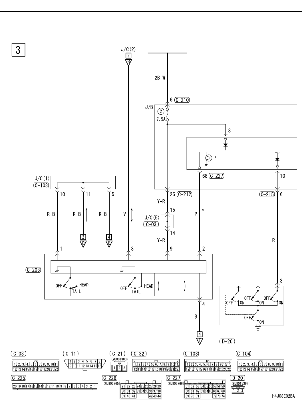
TAIL LAMP, POSITION LAMP, LICENCE PLATE LAMP AND LIGHTING MONITOR BUZZER <LHD>
CIRCUIT DIAGRAMS
90-106
TAIL LAMP, POSITION LAMP, LICENCE PLATE LAMP AND LIGHTING MONITOR BUZZER <LHD>
(CONTINUED)
IGNITION
SWITCH (IG1)
ETACS-ECU
COLUMN
SWITCH
COLUMN-ECU
LIGHTING
SWITCH
FRONT
SIDE
J/B SIDE
DOOR SWITCH
(FRONT: LH)