Specification Sheet

MONOGRAM 24" FULLY INTEGRATED DISHWASHER ZDT985SINII
Product Specification Created 8/19
The custom panel
and custom handle
of your choice should
be secured to the
dishwasher before
installation begins.
A template with
instructions and
installation hardware is
provided.
For planning purposes,
you may order the
template in advance
by calling
1.800.GE.CARES
(1.800.423.2737) or by
visiting our website at
GEAppliances.com in
the United States.
In Canada, call
1.800.561.3344
or visit
www.GEAppliances.ca.
Order Part No.
WD35X25996.
Complete panel
installation instructions
are included on the
template.
Maximum panel weight
is 20 LBS (9.1 kg).
SPECIAL NOTES
CUSTOM DISHWASHER DOOR PANEL TEMPLATE
GE PART NO. WD35X25996
CALL 1-800-626-2000
For a full-size panel template with complete panel installation instructions.
2-9/16”
2-9/16”
25-5/16”
10-13/16”
10-13/16”
10” 10”
Drill 3/32"
Pilot Hole
3/32" Deep
Drill 3/32"
Pilot Hole
3/32" Deep
Drill 3/32"
Pilot Hole
3/32" Deep
Drill 3/32"
Pilot Hole
3/32" Deep
Trim Around Dotted Line
Trim Around Dotted Line
Trim Around Dotted Line
Trim Around Dotted Line
Bottom of Panel Bottom of Panel
Side
of
Panel
Side
of
Panel
25-5/16”
3/4" Thick Custom Panel
Template Instructions for
Top Control Integrated Monogram
Dishwasher Models
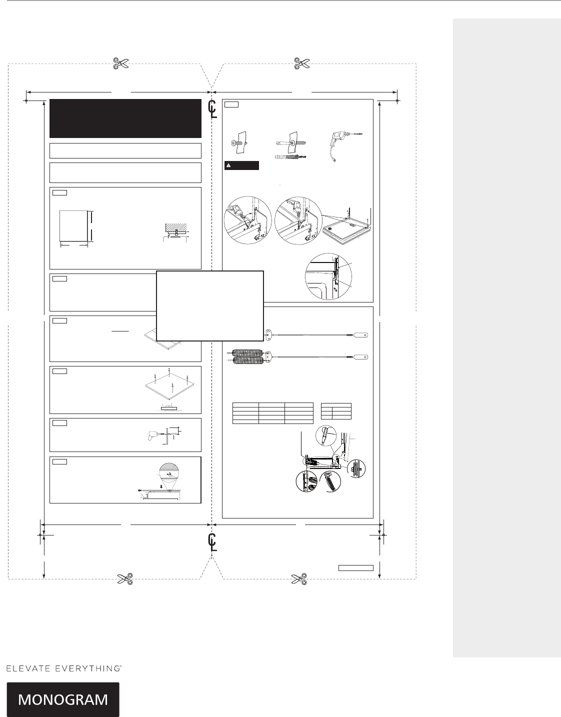
The custom panel should be sized to your installation situation. See Step 1.
It is highly recommended that the custom panel be attached before installing the dishwasher.
Use this template to locate mounting screws and spacers on the custom panel.
IMPORTANT
• A custom handle must be installed onto the
custom panel. Install the custom handle
4-1/2” max. from the top of the panel.
PARTS INCLUDED:
(4) Spacers
(2) #8 x 5/8” Phillips truss head stainless steel screws
(4) #8 x 7/8” Phillips truss head stainless steel wood screws
(2) Heavy duty springs
STEP 1 CUSTOM PANEL SIZE REQUIREMENTS
HEIGHT
STEP 2 DRAW CENTERLINE
• The bottom of the custom panel must not overhang the
the bottom of the metal panel. Exceeding this will cause
the custom panel to hit the toe kick and the door will not
fully open. Any extra length of the custom panel must overhang
at the top of the door. Additionally, make sure the vent is not
obstructed by the custom panel.
• If the panel height is more than 30-1/4", it will
prevent the door from fitting under the cabinet.
• If the panel height is less than 29-13/16" it will
not cover the dishwasher door frame.
WIDTH
Panel width must be 23-3/4".
• If the panel width is less than 23-3/4" it will not cover
the dishwasher door frame.
29-13/16” Min.
30-1/4” Max.
23-3/4”
1/2” min.
Minimum 1/2” gap
for clearance
Countertop
• Place the custom panel on a flat surface with appearance side down.
• Locate the vertical center of the panel at the top.
• Use a carpenters square to draw a centerline from top to bottom.
STEP 3 ALIGN TEMPLATE TO PANEL
• Trim template on the dotted line along all sides.
• Place template on the panel aligned with the bottom edge and the
centerline. Use tape to hold in place.
IMPORTANT: If the template is not aligned properly with the
panel, the panel may hit the toe kick and the door will not fully
open. Longer panels should overhang at the top of the door.
Make sure after installation, to maintain a minimum 1/8" gap to
the countertop from the custom panel.
• Use an awl to mark the screw hole locations indicated on the
template. Remove the template.
STEP 5 INSTALL CUSTOM HANDLE
A custom handle must be installed onto the panel before the panel is
secured to the dishwasher door.
• The handle should be installed so that it aligns with adjacent
drawer handles, or 4-1/2" max. from the top of the panel. Secure
the handle in the same manner as cabinet handles. Screws must be
countersunk into the panel.
STEP 7 INSTALL DOOR SPRINGS
STEP 4 INSTALL MOUNTING SCREWS AND SPACERS
If the panel is less than 3/4" thick, shorter screws must be used.
Use #8 x 3/4" screws for 1/2" thick panels (not supplied).
• Use a 3/32" drill bit to drill pilot holes 3/32" deep in the marked
locations. Make sure not to drill all the way through the panel.
Note: The custom panel is secured to the dishwasher door with
the spacers and screws provided. The 4 spacers will slip into the
keyhole slots on the dishwasher door.
• Drive the supplied #8 x 7/8” screws through the spacer and into
the panel.
• Install remaining spacers and screws as indicated in the marked
locations.
Screw
Spacer
Mark Center
Screw Holes
4-1/2" Max.
From Top
of Panel
Handle
Custom
Door Panel
Screws Must
Be Countersunk
Into Panel
IMPORTANT: To ensure optimum door balance
performance, the custom panel must not weigh
more than 20 lbs.
Align with this bottom edge only.
• The following table may be used as a guideline regarding which springs to use, depending on the weight of panel
being added. However, spring combinations may be adjusted based on personal preferences regarding door feel.
Note: For combinations requiring two different strength springs, the side used is unimportant and the table headings
below are for reference only. For example, a panel weighing 8 lbs would require two (2) gray springs and one (1) blue
spring. The gray springs may be installed on the left side and the blue spring on the right side, or the two gray springs
may be installed on the right side and the blue spring on the left.
• The bottom spring opposite end should be hooked over the lowest screw on the rear tub bracket. The top spring
hooks into the first available hole above the screw in the same rear tub bracket. See illustrations below.
Panel Weight (lbs) Left Side Springs Right Side Springs
0-5 Blue Blue
5-10 Gray x 2 Blue
10-15 Blue x 2 Black
15-20 Blue x 2 Black x 2
TIP: If the door does not open easily or falls too quickly, check
spring cable routing. The cable is held in place by “shoulders”
on the pulley. Check to be sure the cable has not slipped over
the pulley shoulders.
IMPORTANT: Adjust both balance springs to the same amount
of tension to prevent excessive door twisting during use.
• Close and latch the door.
• Check door balance after custom panel is installed.
If the door drops open too fast, you may swap any of
the springs with the next heaviest spring as shown in
the table.
• Remove the rear screw-style leveling feet because of
spring interference.
Side View
Make sure pulley cables
are within pulley shoulders
Front View
Custom
door
panel
Spring
hooked
to screw
inside leg
• Depending on the weight of the panel being used, additional springs may be needed to balance the door during
operation. If only one spring is being attached to the cable, the spring hook should be inserted into the middle hole
on the cable and the other end of the spring should be hooked over the lowest screw on the rear tub bracket as
shown below:
• If multiple springs are required on each side to balance the door, the spring hooks should be inserted into the top and
bottom holes on the cable as shown below:
Gray
Black Heavy Duty
Blue
Light Duty
Medium Duty
Spring Strength
08-19 GEA
Pub no. 31-4000217
Panel height must be between 29-13/16" and
30-1/4".
Lorem ipsum
STEP 6 INSTALL ASSEMBLED PANEL - (CONTINUED)
4. Carefully open the door because door will likely be unbalanced.
Start insertion of driver at approximately 45
angle to clear the screw head past the hinge components, once the
screw head is clear, rock the driver forward to a vertical position. Proceed to drive the screw. Repeat procedure for
the opposite side.
Drive screw through the hole
in hinge bracket and door into
the wood panel.
Door shown fully open
STEP 6 INSTALL ASSEMBLED PANEL
• Secure the panel to the door by inserting the top and bottom
spacers into the matching keyhole slots.
• Make sure all 4 spacers engage the keyhole slots.
• Press the panel against the door and push downward until the
spacers are fully engaged into the keyhole slots. The panel should
align evenly with the top and sides.
Custom
Panel
Dishwasher
Door
Spacers
Engage Keyhole
Slots
It is extremely important that the 2 screws are driven into the wood panel through the
metal door assembly. This locks the vertical motion of the custom panel and if not secured
the panel can come off the unit during door opening/closing causing personal injury and damage to the panel.
Due to location of screw holes and very limited space it will be very helpful to attach screws to the driving bit with
tape to keep the screw from falling off inside the door while inserting down inside. Read and follow the steps below.
1. Insert one of the sup-
plied #8 x 5/8” truss head
screws through a piece of
masking tape.
2. Insert a minimum 2” long bit
into head and wrap tape
around end of bit. (#1 square
drive preferred)
3. Use a bit extension with
a max 3/8” diameter
shank and a minimum
2-3/4” length.
NOTICE: Do not overtighten screws.
Excessive tightening of the screws
could damage door edges.
1
2
3
Installed screw
Inner Door
Hinge
Panel
Custom
45
CAUTION
FOR REFERENCE
ONLY
–
NOT TO SCALE