Quick Specification

For questions about your
appliance, please call 1-800-626-2000.
FLUSH INSET INSTALLATION
HELPFUL TIPS
PAGE 7 OF 17 Product Specication Revised 2/20
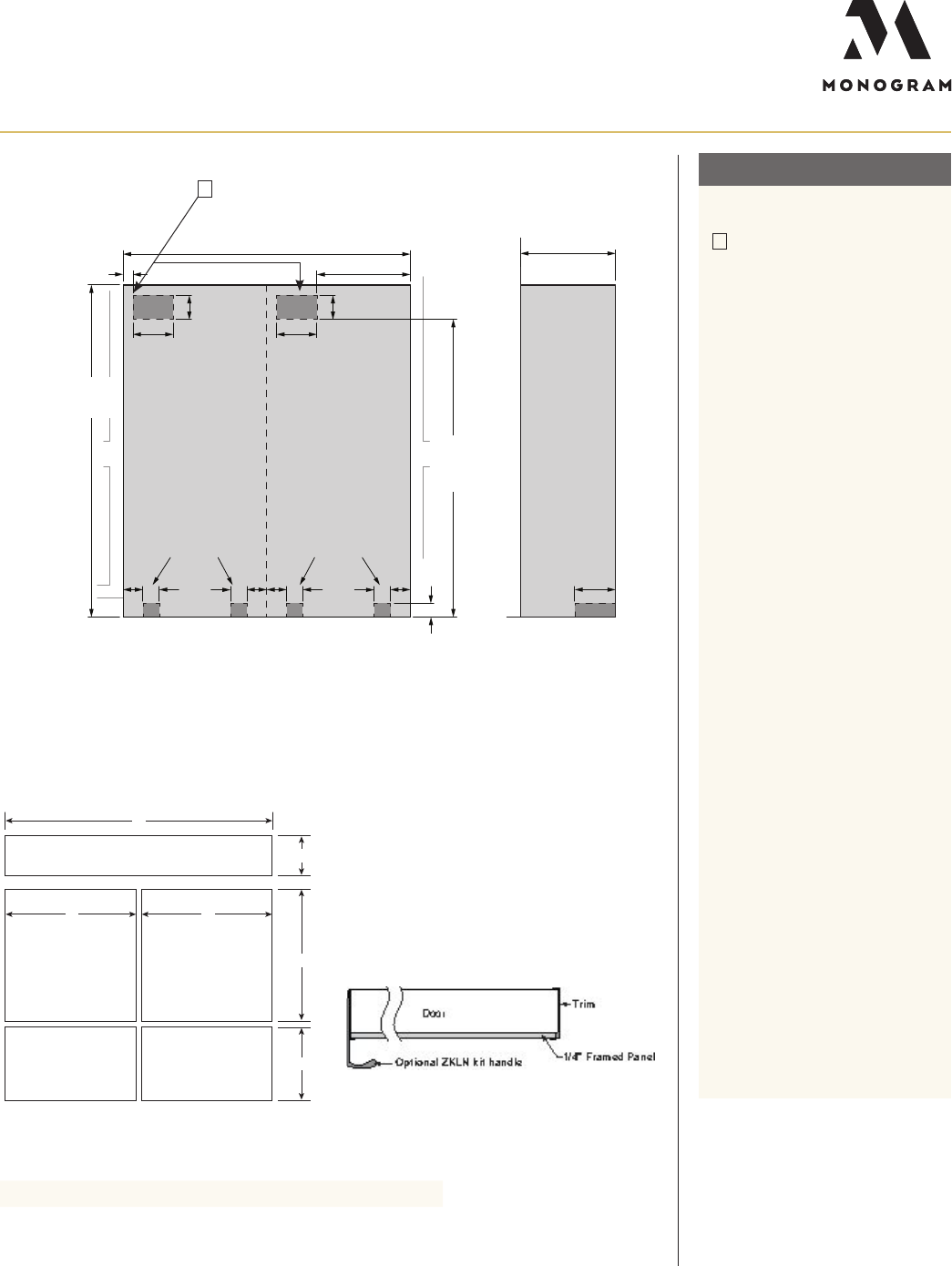
PANEL ASSEMBLY
CROSS SECTION
HELPFUL TIPS
For questions about your
appliance, please call 1-800-626-2000.
STANDARD INSTALLATION
PAGE 7 OF 17
STANDARD 1/4" FRAMED PANEL DIMENSIONS
DUAL INSTALLATION
Trimmed refrigerators are designed
to be customized with decorative
panels. Field-installed custom door
and grille panels are required.
1/4" FRAMED PANELS:
For 1/4" thick custom panels ordered
from your cabinet maker. e
decorative panels slide into the trim.
MAXIMUM TOTAL PANEL
WEIGHT:
• Fresh food door panel – 58 lbs.
• Freezer drawer panel – 28 lbs.
• Grille panel – 25 lbs.
Order ZKBFN720NII unification kit
for an integrated appearance on 2
custom panel models installed side-
by-side.
71 1/2" (181.6)
Finished Width
24" (60.9)
Min. Cutout Depth
24 3/16" (61.4)
2 5/16"
(5.9)
6"
(15.2)
10"
(25.4)
*84
+
-
.500
(212.1-214.6)
Finished Opening
ZIC360NXLH_ZIC360NXRH_ZICP360NXLH_ZICP360NXRH
ZICS360NXLH_ZICS360NXRH
FRONT VIEW
ELEC.
6"
(15.2)
10"
(25.4)
3 1/2"
(8.9)
25" min
(63.5)
To wall
25" min
(63.5)
To wall
1"
(2.5)
130˚
Door swing
130˚
Door swing
75"
(190.5 )
From floor
to bottom
of electrical
area
ELEC.
SIDE VIEW
5"
(12.7)
5"
(12.7)
WATER
10" (25.4)
WATER
3 1/2"
(9.0)
WATER
3 1/2"
(9.0)
5 3/4"
(14.6)
5 3/4"
(14.6)
A
A separate 115V, 60Hz, 15-
or 20-amp power supply is
recommended for each product.
Additional cutout width may be
required when side panels are used.
DUAL INSTALLATIONS
A
PANEL DIMENSIONS
A B C D E
1/4" Framed Panel 69 7/8" 8 7/8" 46 1/16" 21 7/8" 33 7/8"
Grille Panel
Fresh
Food
Panel
Freezer Drawer Panel
A
Fresh
Food
Panel
Freezer Drawer Panel
E
B
C
D
E