MS Super2E Specifications

mr
.
steam
®
Sussman-Automatic Corp
®
hello@mrsteam.com www.mrsteam.com
43-20 34th Street, Long Island City, NY 11101 TEL: 800 76 STEAM FAX: 718 472 3256 / 9410 S. La Cienega Blvd. Inglewood CA 90301 TEL: 800 72 STEAM FAX: 310 216 2944
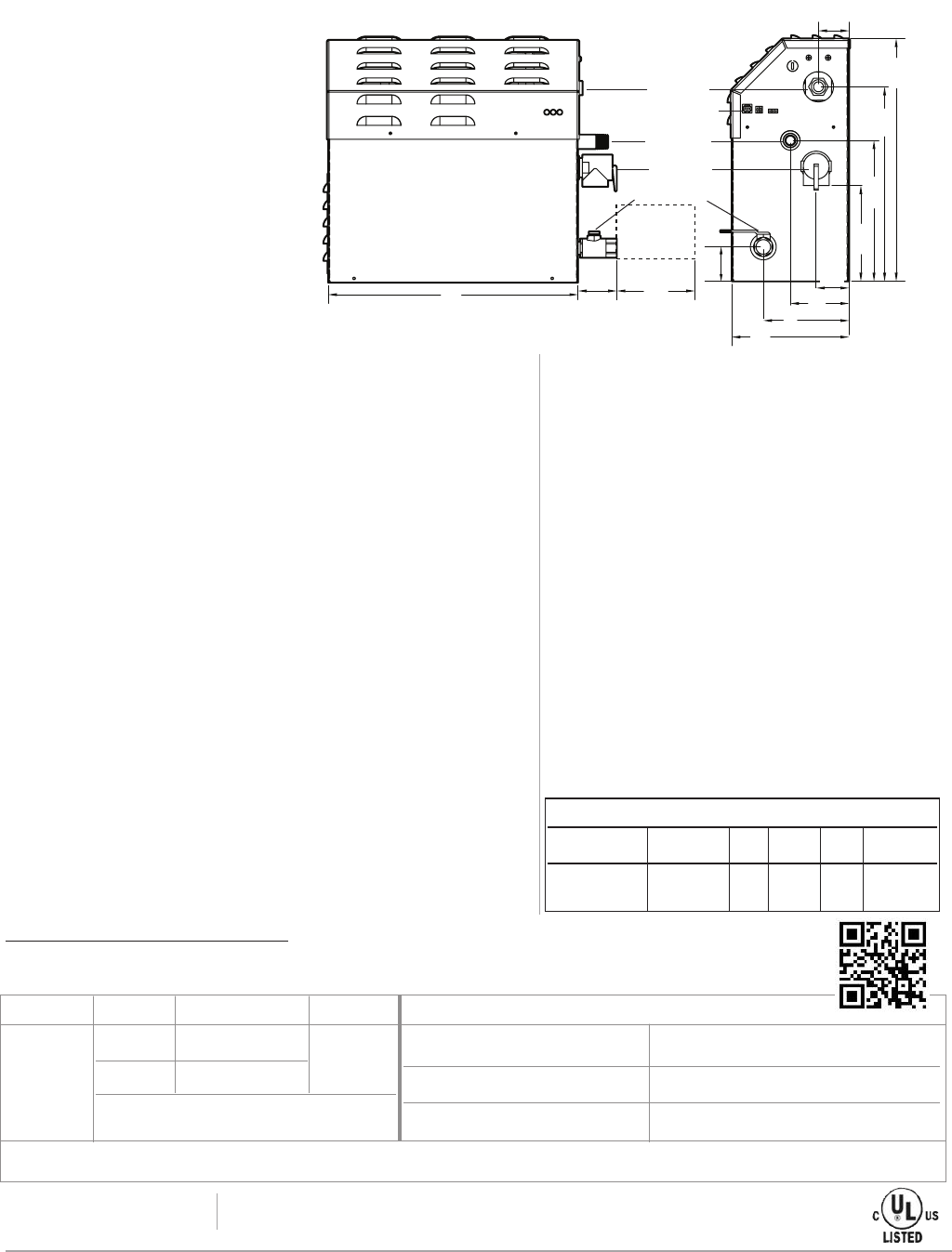
17"
(432)
2
1
/2
"
(64)
4
7
/8
"
(124)
2"
(51)
7
7
/8
"
(200)
7
1
/4"
(184)
9
7
/8"
(251)
15
1
/2"
(
394)
18
3
/4"
(476)
1
1
/4"
(32)
6"
(152)
6
3
/8
"
(162)
2
1
/4
"
(57)
Water Inlet
Control & Acces-
sory Connections
S
team Outlet
S
afety Valve
Manual Drain Valve
Mr.Steam Standard Features
•
Stainless steel tank
• Industrial, large diameter,
serviceable heating element
• Modular Plug and Play connections
• Electronic water-levelcontrol system
• Full-port drain valve.
• Limited lifetime steam generator
parts warranty
Safety Features
• Built-in, low-voltage 24-volt control
• ASME safety valve
Locating and Installing the Steam Generator Unit
• Select a location as near as practical
to the steam room, within 60 feet.
Typical locations include: closet, van-
ity cabinet, heated attic or basement
• Do not install steambath generator
inside the steam room.
• Do not install steambath generator
outdoors or wherever environmental
conditions may affect the safety and/
or performance of the generator
• Do not install steambath generator or
plumbing lines in unheated attic or
any locations where water could
freeze
• Do not install steambath generator
near flammable or corrosive materials
Required Plumbing
Steam Outlet (1/2" NPT) Safety Valve (3/4" NPT)
Drain (1/2" NPT) Steam Head (1/2" NPT)
Water Supply (3/8" NPT)
Electrical
All electrical wiring to be installed by a qualified
licensed electrician in accordance with National
Electrical Code and local electrical code.
Power Wiring
1. Check power voltage. Use 240V rated unit when
supply matches rating of unit before installation.
2. Use minimum 90˚ C/300V rated insulated copper
conductors only, type THHN or equal sized in
accordance with National Electrical Code and local
electrical code for the Amps in Ampere Chart.
If allowed by code, NM cable may require a larger
wire size than as listed on the chart.
3. Connect suitably sized equipment grounding wire to
ground terminal provided.
4. Install a separate circuit breaker between supply and
unit. Provide a power supply disconnect within
sight of the steam generator or one that is capable
of being locked in the open position.
A M P E R E C H A R T
MAX ROOM VOLTS WIRE SIZE
MODEL NO. VOL. CU.FT. KW 1 PH AMPS (AWG)
MS Super2E 575 12.0 208 58 6
240 50 6
MODEL VOLTAGE* PHASE OPTIONS PROJECT INFORMATION
MSSuper2E
B=208
1-Single Phase
Express
C=240
3-Three Phase
Steam
*
Contact Mr. Steam for other voltages
Notes:
Location:
Architect:
Engineer:
Contractor:
Submitted By:
Date:
Required Equipment: iSteam,
or iTempoPlus Control
Optional Equipment: iGenie, AudioWizard, ChromaSteam, HomeWizard, Recessed Light, MS
Light, MS Wallseat, AutoFlush, Drip Pan, AromaSteam, Chlorine Filter, FORM Shower Systems
or chemicals or in areas having a high
concentration of chlorine
• Install steambath generator on a solid
and level surface or securely mounted to
a wall using the keyhole slots provided.
• Install steambath generator in an upright
position only
• Provide a minimum of 12 inches inches
at both ends and top of the steam
generator or as required for servicing.
Alternately provide unions to facilitate
installation and disconnection of the
steam generator.
• The minimum clearance from com-
bustible surfaces is zero all around.
FOR ILLUSTRATIVE PURPOSES ONLY. IMPORTANT NOTE: FOR SAFE AND TROUBLE FREE INSTALLATION
visit mrsteam.com or scan the QR code before installation to download the Installation, Operation and Maintenance
Manual or refer to the manual provided with the unit.
TS0041-S2E REV 8.15
O
ptional
AutoFlush
• 60-minute electronic countdown
shutdown with 75-minute limiting
safety back-up
mr
.
steam
®
Technical Specifications
______________________________________________________
Model MS Super2E
Serial Number 9000000 and higher