Install Manual
Table Of Contents

61
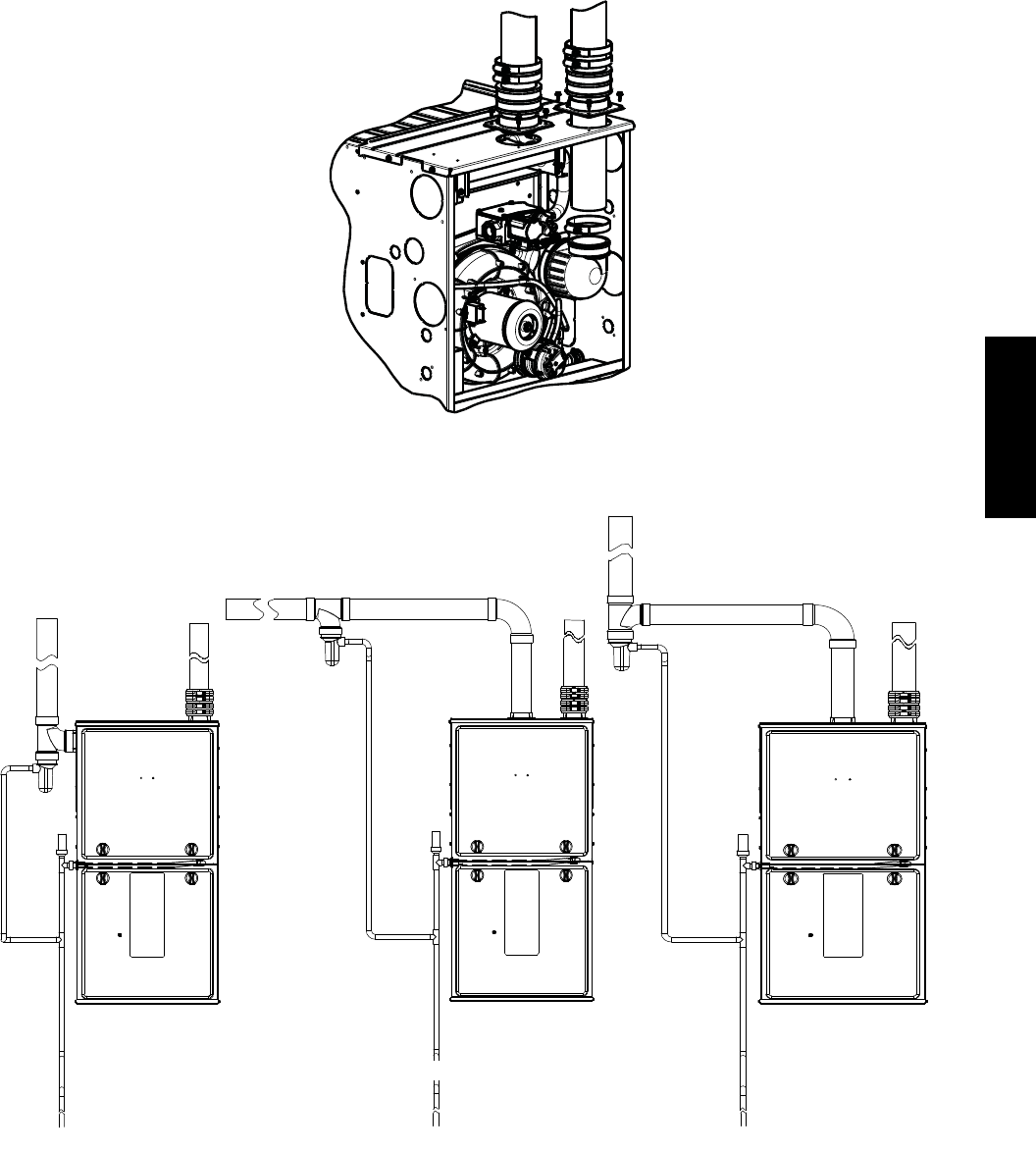
EXAMPLE FOR
UPFLOW INSTALLATIONS.
MAY BE APPLIED TO
OTHER CONFIGURATIONS.
A12220
Fig. 55 -- Sample Inlet Air Pipe Connection for
Polypropylene Venting Systems
Representative drawing only, some models may vary in appearance
TO
CODEïAPPROVED
DRAIN
OR
CONDENSATE
PUMP
L
1
L12F028
Fig. 56 -- Recommended Combustion Air Inlet Moisture Trap
PG95SAS










