Installation Guide
Table Of Contents

28
2-IN.
(51 mm)
ROLLOUT PROTECTION REQUIRED
Install 12” x 22” (305x559 mm) sheet metal in front of burner compartment
area. The sheet metal MUST extend underneath the furnace casing by 1-in.
(25 mm) with the door removed. The bottom closure panel may be used for
ame roll-out protection when bottom of furnace is used for return air connection.
30 IN. (762 mm)
MIN. WORK AREA
COMBUSTION - AIR PIPE
(SEE VENTING SECTION)
A150580
Fig. 29 -- Working Platform for Attic Installation
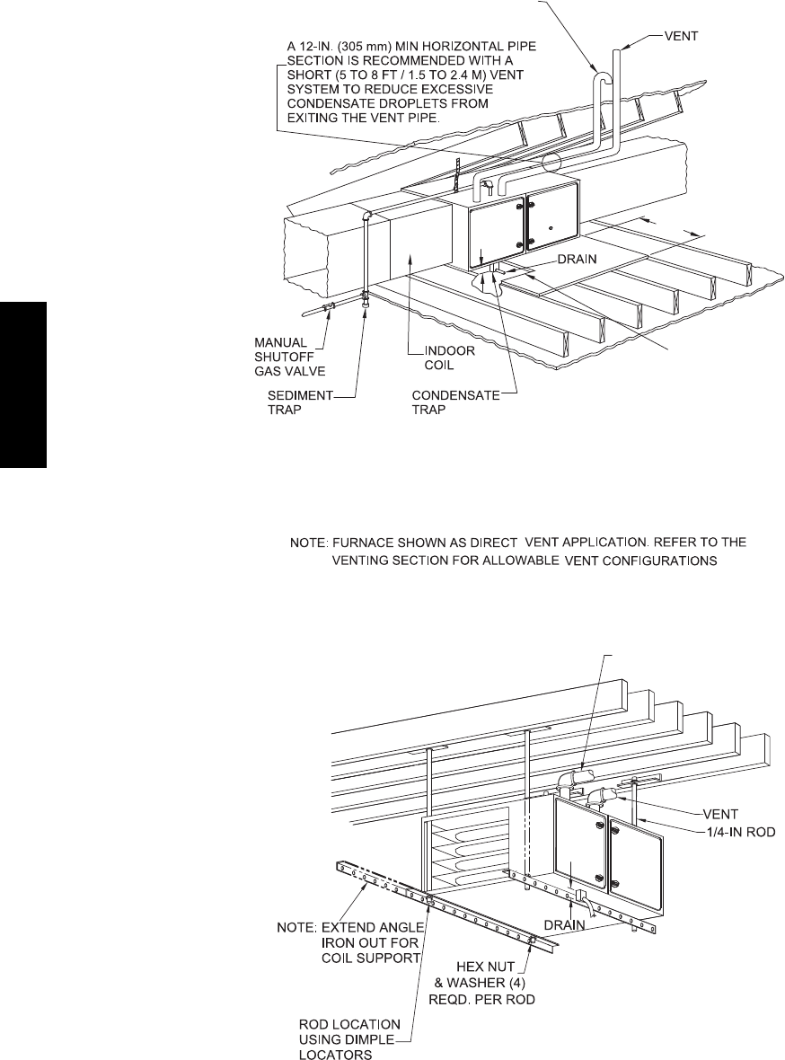
NOTE: Local codes may require a drain pan and condensate trap when a condensing furnace is installed over a finished ceiling.
2-IN.
(51 mm)
COMBUSTION-AIR PIPE
(SEE VENTING SECTION)
Install 12” x 22” (204 x 559 mm) sheet metal in front of and above the burner compartment area.
T
he sheet metal MUST extend above the furnace casing by 1-in. (25 mm with the door removed.
A 1-in. (25 mm) clearance minimum between top of furnace and combustible material is required.
T
he entire length of furnace must be supported when furnace is used in horizontal position to
ensure proper drainage.
NOTE: FURNACE SHOWN IS A DIRECT-VENT APPLICATION. REFER TO THE VENTING SECTION FOR
ALLOWABLE VENT CONFIGURATIONS.
ROLLOUT PROTECTION REQUIRED
A150581
Fig. 30 -- Suspended Furnace Installation
NOTE: Local codes may require a drain pan and condensate trap when a condensing furnace is installed over a finished ceiling.
PG95SAS










