User's Manual


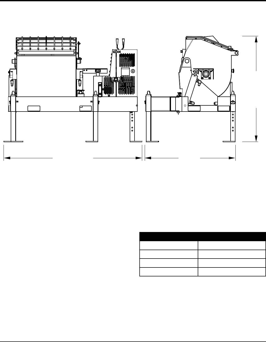
DIMENSIONS
Mixer Dimensions
Reference Designator 
A (Length) 73.5 (1917.7)
B (Width) 35.0 (889)
C (Height) 45.0 (1143)
Figure 1. Mixer Dimensions
A B
C