User's Manual

DCA250SSI/DCA250SSIU GENERATOR • OPERATION AND PARTS MANUAL — REV. #0 (01/12/11) — PAGE 17
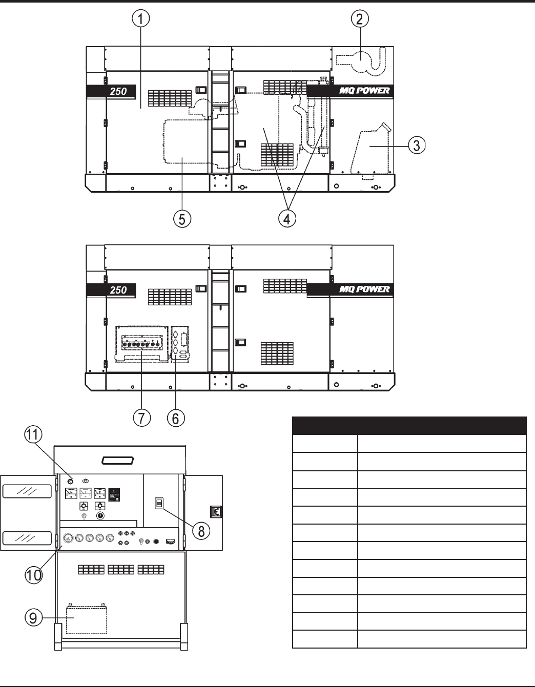
MAJOR COMPONENTS
Table 4. Generator Major Components
ITEM NO. DESCRIPTION
1 Air Filter Assembly
2 Muffl er Assembly
3 Fuel Tank Assembly
4 Engine and Radiator Assembly
5 Generator Assembly
6 Output Receptacles Assembly
7 Output Terminal Panel Assembly
8 Circuit Breaker Assembly
9 Battery Assembly
10 Engine Operating Panel Assembly
11 Generator Control Panel Assembly
Figure 3. Major Components










