User Manual

DCA70USI2 60 HZ GENERATOR • OPERATION AND PARTS MANUAL — REV. #0 (06/28/11) — PAGE 13
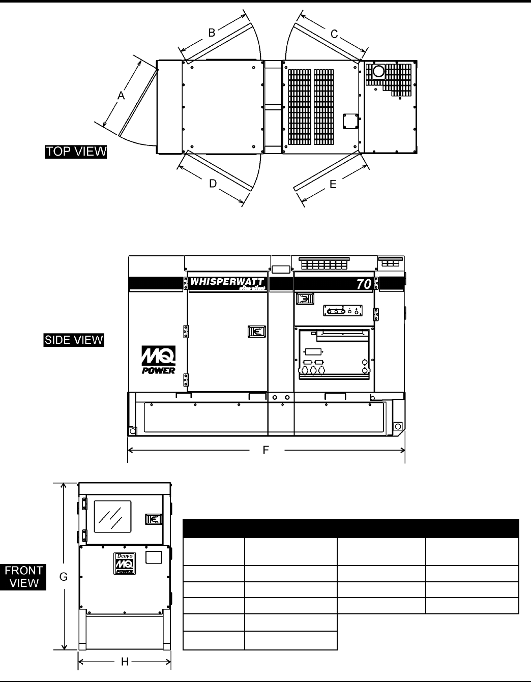
DIMENSIONS
Figure 1. Dimensions
Table 3. Dimensions
Reference
Letter
Dimension in. (mm) Reference Letter Dimension in. (mm)
A 30.10 in. (790 mm.) F 105.1 in. (2,670 mm.)
B 30.20 in. (766 mm.) G 68.30 in. (1,735 mm.)
C 30.20 in. (766 mm.) H 37.40 in. (950 mm.)
D 30.20 in. (766 mm.)
E 30.20 in. (766 mm.)










