Digital Photo Keychain User Manual
Table Of Contents
- NI PXI/PCI-5124 Specifications
- Contents
- Vertical
- Analog Input (Channel 0 and Channel 1)
- Figure 1. NI 5124 Frequency Response (Typical)
- Figure 2. NI 5124 Dynamic Performance, 50 W , 1 Vpk-pk Range, 262,144 Point FFT (Typical)
- Figure 3. Representation of NI 5124 Spectral Noise Density on 0.2 V Range, Noise Filter Enabled, 1 MW Input Impedance
- Figure 4. Representation of NI 5124 Spectral Noise Density on 0.2 V Range, Full Bandwidth, 50 W Input Impedance
- Analog Input (Channel 0 and Channel 1)
- Horizontal
- Trigger
- PFI 0 and PFI 1 (Programmable Function Interface, AUX Front Panel Connector)
- TClk Specifications
- Waveform Specifications
- Calibration
- Power
- Software
- Environment
- Safety, Electromagnetic Compatibility, and CE Compliance
- Physical
- Where to Go for Support

© National Instruments Corporation 29 NI PXI/PCI-5124 Specifications
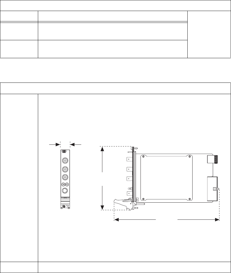
Dimensions and Weight
NI PXI-5124 Front Panel Indicators
Label Function For more
information,
refer to the
NI High-Speed
Digitizers
Help.
ACCESS The ACCESS LED indicates the status of the PCI bus and the
interface from the NI PXI-5124 to the controller.
ACTIVE The ACTIVE LED indicates the status of the onboard
acquisition hardware of the NI PXI-5124.
NI PXI-5124
Dimensions 3U, One slot, PXI/cPCI Module
21.6 × 2.0 × 13.0 cm
(8.5 × 0.8 × 5.1 in.)
Weight 383 g (13.5 oz)
13.0 cm
(5.1 in.)
21.6 cm
(8.5 in.)
2.0 cm
(0.8 in.)










