Installation Instructions
Table Of Contents
- Inhoudsopgave
- 1 Toelichting bij de symbolen en veiligheidsaanwijzingen
- 1.1 Uitleg van de symbolen
- 1.2 Algemene veiligheidsinstructies
- 2 Leveringsomvang
- 3 Algemeen
- 4 Technische instructies
- 5 Afmetingen, minimale afstanden en leidingaansluitingen
- 6 Voorschriften
- 7 Installatie
- 7.1 Voorbereidende leidingaansluitingen
- 7.2 Opstellen
- 7.3 Waterkwaliteit
- 7.4 CV-installatie spoelen
- 7.5 Checklist
- 7.6 Bedrijf zonder buitenunit (standalone-bedrijf)
- 7.7 Installatie met koelbedrijf
- 7.8 Installatie met warmwaterbereiding via zonne-energie (alleen zonne-energiemodellen)
- 7.9 Installatie met zwembad
- 7.10 Installatie met buffervat
- 7.11 Binnenunit op de cv-installatie en warmwater
- 7.12 Hoogrendementspomp (PC0)
- 7.13 Circulatiepomp voor cv-installatie (PC1)
- 7.14 Circulatiepomp PW2 (accessoire)
- 7.15 Isolatie
- 7.16 Meerder cv-circuits (accessoire mengermodule, zie afzonderlijke handleiding)
- 7.17 Dauwpuntsensoren (accessoire voor koelbedrijf) monteren
- 7.18 Kamerthermostaat monteren
- 7.19 Buiten-en binnenunit vullen
- 8 Elektrische aansluiting - algemeen
- 9 Elektrische aansluiting - buitenunit
- 9.1 Klemaansluitingen in de sturing, elektrische bijverwarming met 9 kW 3N~, fabrieksuitvoering
- 9.2 Klemaansluitingen in de sturing, elektrische bijverwarming met 9 kW 1N~, zie volgorde van de jumpers
- 9.3 Aansluitschema voor elektrische bijverwarming met 9 kW 3N~, fabrieksuitvoering
- 9.4 Aansluitschema voor elektrische bijverwarming met 9 kW 1N~
- 9.5 Aansluitschema voor elektrische bijverwarming met 9 kW 3N~
- 9.6 Elektrisch schema installatieprintplaat HC100
- 9.7 Aansluitschema buitenunit/binnenunit
- 9.8 Elektrische aansluiting energieleverancier
- 9.8.1 Klemaansluitingen in de sturing, elektrische bijverwarming met 9 kW 3N~, energieleverancier, zie volgorde van de jumpers
- 9.8.2 Klemaansluitingen in de sturing, elektrische bijverwarming met 9 kW 1N~, energieleverancier, zie volgorde van de jumpers
- 9.8.3 Aansluitschema voor EVU/SG
- 9.8.4 EVU 1, uitschakeling van compressor en elektrische bijverwarming
- 9.8.5 EVU 2, alleen uitschakeling van de compressor
- 9.8.6 EVU 3, alleen uitschakeling elektrische bijverwarming
- 9.8.7 Smart Grid
- 9.8.8 Fotovoltaica
- 10 Buiten-en binnenunit ontluchten
- 11 Onderdelen in de binnenunit vervangen
- 12 Functietest
- 13 Milieubescherming
- 14 Inspectie
- 15 Aansluitmogelijkheid voor IP-module

16
IDU Monoblock 5-17 T/TS • 6 720 817 794 (2015/08)
Installatie7
7.8 Installatie met warmwaterbereiding via zonne-ener-
gie (alleen zonne-energiemodellen)
▶ Zonnecollector installeren ( instructie voor de zonnecollector).
▶ Alle buizen en aansluitingen isoleren.
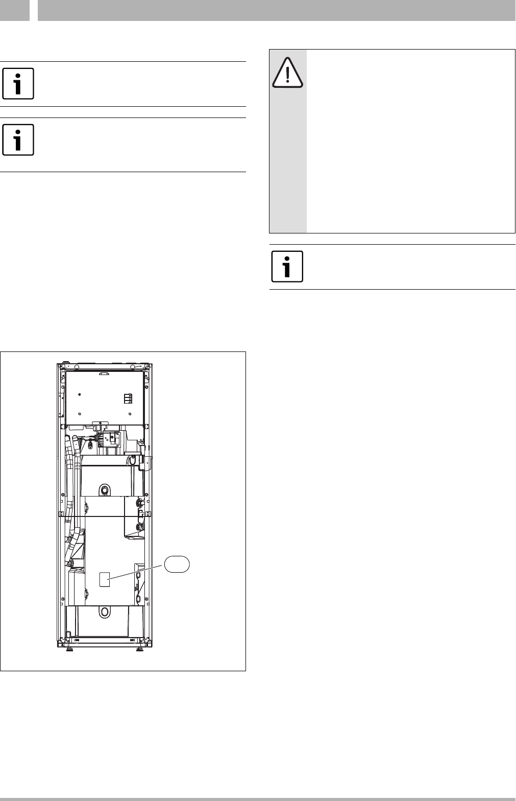
▶ Boilertemperatuursensor TS2 installeren ( afbeelding 11).
– Isolatie bij de markering openknippen/eruit knippen. Pas op voor
de -sensorkabel onder de isolatie!
– Sensor TS2 aan de klem bevestigen.
– Het uitgeknipte deel van de isolatie weer terugplaatsen en bij-
voorbeeld met Armaflex-plakband vastzetten.
▶ Zonnemodule MS100 installeren ( instructie voor zonnemodule).
▶ Kies bij de inbedrijfstelling als antwoord op de vraagJa de optie Zon-
nesysteem geïnstalleerd ( installatie-instructies van de bedie-
ningseenheid HMC300).
▶ De benodigde instellingen voor het zonnesysteem uitvoeren ( in-
stallatie-instructies bedieningseenheid HMC300).
Afb. 11 Sensors TW1 en TS2
[1] Positie van de sensor
7.9 Installatie met zwembad
▶ Zwembad installeren ( instructie zwembad).
▶ Mengmodule voor zwembad installeren.
▶ Alle leidingen en aansluitingen isoleren.
▶ Zwembadmodule installeren ( instructie voor de zwembadmodu-
le). Opmerking: de in de handleiding beschreven installatieconfigu-
ratie kan niet worden gebruikt.
▶ Looptijd van de mengmodule voor zwembad bij de inbedrijfstelling
instellen ( installatie-instructies voor de bedieningseenheid
HMC300).
▶ De benodigde instellingen voor het zwembadbedrijf uitvoeren ( in-
stallatie-instructies bedieningseenheid HMC300).
Een voorwaarde voor de toepassing van warmwaterbe-
reiding via zonne-energie is de installatie van de zonne-
module MS100 (accessoire).
De zonnewarmtewisselaar in de boiler is bedoeld voor
een maximale vermogenstoevoer van 4,5 kW. Met de in-
gebouwde zonnewarmtewisselaar is alleen warmwater-
bereiding mogelijk.
1
6 720 813 881-04.1I
OPMERKING: Gevaar voor functiestoringen!
Indien de mengmodule voor het zwembad binnen de in-
stallatie op de verkeerde plaats wordt gemonteerd, is
geen koelfunctie mogelijk. Ook andere bedrijfsstoringen
kunnen een gevolg hiervan zijn. De mengmodule voor
het zwembad mag niet in de aanvoer gemonteerd wor-
den, omdat daardoor het overstortventiel geblokkeerd
zou kunnen worden.
▶ De mengmodule voor het zwembad in de retourlei-
ding naar de binnenunit monteren ( [VC1]
afb. 12).
▶ T-stuk in de aanvoer van de binnenunit voor de bypas
in de inlaatcombinatie monteren.
▶ De mengmodule voor het zwembad niet als cv-groep
in de installatie monteren.
Een voorwaarde voor de toepassing van de zwembad-
verwarming is de installatie van een zwembadmodule
MP100 (accessoire).










