Installation Instructions
Table Of Contents
- Inhoudsopgave
- 1 Toelichting bij de symbolen en veiligheidsaanwijzingen
- 1.1 Uitleg van de symbolen
- 1.2 Algemene veiligheidsinstructies
- 2 Leveringsomvang
- 3 Algemeen
- 4 Technische instructies
- 5 Afmetingen, minimale afstanden en leidingaansluitingen
- 6 Voorschriften
- 7 Installatie
- 7.1 Voorbereidende leidingaansluitingen
- 7.2 Opstellen
- 7.3 Waterkwaliteit
- 7.4 CV-installatie spoelen
- 7.5 Checklist
- 7.6 Bedrijf zonder buitenunit (standalone-bedrijf)
- 7.7 Installatie met koelbedrijf
- 7.8 Installatie met warmwaterbereiding via zonne-energie (alleen zonne-energiemodellen)
- 7.9 Installatie met zwembad
- 7.10 Installatie met buffervat
- 7.11 Binnenunit op de cv-installatie en warmwater
- 7.12 Hoogrendementspomp (PC0)
- 7.13 Circulatiepomp voor cv-installatie (PC1)
- 7.14 Circulatiepomp PW2 (accessoire)
- 7.15 Isolatie
- 7.16 Meerder cv-circuits (accessoire mengermodule, zie afzonderlijke handleiding)
- 7.17 Dauwpuntsensoren (accessoire voor koelbedrijf) monteren
- 7.18 Kamerthermostaat monteren
- 7.19 Buiten-en binnenunit vullen
- 8 Elektrische aansluiting - algemeen
- 9 Elektrische aansluiting - buitenunit
- 9.1 Klemaansluitingen in de sturing, elektrische bijverwarming met 9 kW 3N~, fabrieksuitvoering
- 9.2 Klemaansluitingen in de sturing, elektrische bijverwarming met 9 kW 1N~, zie volgorde van de jumpers
- 9.3 Aansluitschema voor elektrische bijverwarming met 9 kW 3N~, fabrieksuitvoering
- 9.4 Aansluitschema voor elektrische bijverwarming met 9 kW 1N~
- 9.5 Aansluitschema voor elektrische bijverwarming met 9 kW 3N~
- 9.6 Elektrisch schema installatieprintplaat HC100
- 9.7 Aansluitschema buitenunit/binnenunit
- 9.8 Elektrische aansluiting energieleverancier
- 9.8.1 Klemaansluitingen in de sturing, elektrische bijverwarming met 9 kW 3N~, energieleverancier, zie volgorde van de jumpers
- 9.8.2 Klemaansluitingen in de sturing, elektrische bijverwarming met 9 kW 1N~, energieleverancier, zie volgorde van de jumpers
- 9.8.3 Aansluitschema voor EVU/SG
- 9.8.4 EVU 1, uitschakeling van compressor en elektrische bijverwarming
- 9.8.5 EVU 2, alleen uitschakeling van de compressor
- 9.8.6 EVU 3, alleen uitschakeling elektrische bijverwarming
- 9.8.7 Smart Grid
- 9.8.8 Fotovoltaica
- 10 Buiten-en binnenunit ontluchten
- 11 Onderdelen in de binnenunit vervangen
- 12 Functietest
- 13 Milieubescherming
- 14 Inspectie
- 15 Aansluitmogelijkheid voor IP-module

42
IDU Monoblock 5-17 T/TS • 6 720 817 794 (2015/08)
Aansluitmogelijkheid voor IP-module15
Meetwaarden van temperatuursensoren
Tower (binnenunit)
Voor op de binnenunit aangesloten temperatuursensors en temperatuur
sensors in de binnenunit (T0, T1, TW1, TC0, TC1) gelden de meetwaar-
den uit tab. 11 en 12.
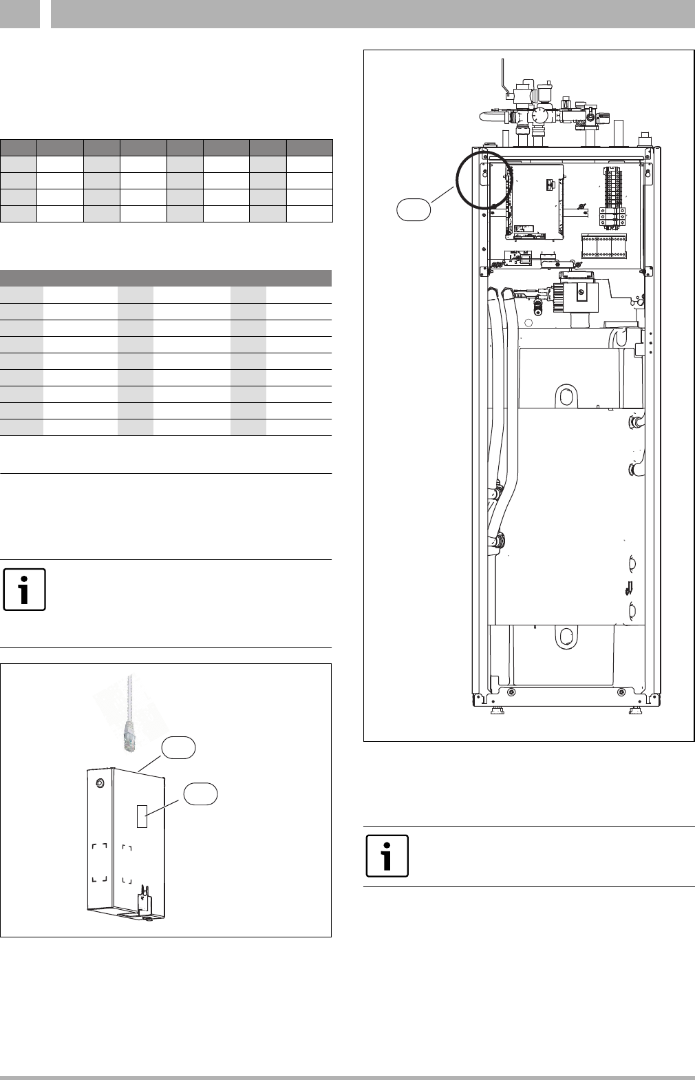
15 Aansluitmogelijkheid voor IP-module
De binnenunit is uitgerust met een IP-module waarmee de binnenunit via
een mobiele telefoon of tablet kan worden aangestuurd en bewaakt. De
module dient als interface tussen de cv-installatie en een netwerk (LAN).
Afb. 44 IP-module
[1] RJ45-aansluiting
[2] Typeplaat voor IP-module
Afb. 45 Volgorde van de IP-module
[1] Volgorde van de IP-module. Schakelkast naar voren kantelen en
netwerkkabel door de bovenste afdekking leiden.
Inbedrijfname
De router moet als volgt zijn ingesteld:
• DHCP actief
• Poorten 5222 en 5223 mogen niet voor uitgaande communicatie
zijn geblokkeerd.
• Vrije IP-adres aanwezig
• Op de module aangepaste adresfiltering (MAC-filter).
Voor de inbedrijfname van de IP-module staan de volgende mogelijkhe-
den ter beschikking:
• Internet
De module krijgt automatisch een IP-adres van de router. In de basis-
°C °C °C °C
20 12488 40 5331 60 2490 80 1256
25 10001 45 4372 65 2084 85 1070
30 8060 50 3605 70 1753 90 915
35 6536 55 2989 75 1480 – –
Tabel 11 Aanvoer- en warmwatertemperatuursensor T0, TW1, TC0,
TC1
°C
T...
°C
T...
°C
T...
–40 154300 5 11900 50 1696
–35 111700 10 9330 55 1405
–30 81700 15 7370 60 1170
–25 60400 20 5870 65 980
–20 45100 25 4700 70 824
–15 33950 30 3790 75 696
–10 25800 35 3070 80 590
–5 19770 40 2510 85 503
0 15280 45 2055 90 430
Tabel 12 Buitentemperatuursensor T1
Voor het gebruik van de volledige functionaliteit zijn een
internettoegang en een router met een vrije RJ45-uit-
gang nodig. Hierdoor kunnen extra kosten ontstaan.
Voor het regelen van de installatie met een mobiele tele-
foon of tablet is een app nodig.
2
1
6 720 809 156-41.1I
Bij de inbedrijfname de documentatie van de router aan-
houden.
6 720 809 156-40.1I
1










