Carpet Cleaner User Manual

9097058000(2)2009-10 A SCRUBTEC 653B – 653BL – 651BCL – 661BL 11
BETRIEBSANLEITUNG
DEUTSCH
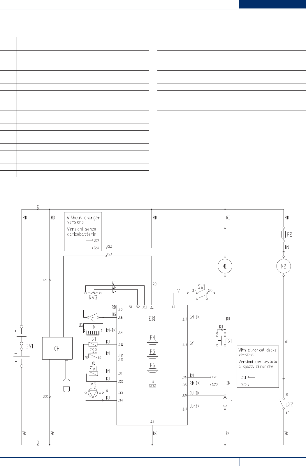
SCHALTPLAN (SCRUBTEC 653B)
Legende
BAT 24-V-Batterie
C1 Batteriestecker
C2 Stecker Ladegerät
CH Ladegerät (optional)
CS Stecker Kopf
EB1 Elektronikkarte Funktionen
ES1 Fernschalter Bürstenmotoren
ES2 Relais Ansauganlage
EV1 Elektroventil Wasser
F1 Sicherung Kopf
F2 Sicherung Ansauganlage
F4 Sicherung Signalkreise
F5 Sicherung Freigabe Bürsten
F6 Sicherung Pumpen
HM Stundenzähler (optional)
K1 Zündschlüssel
M1 Bürsten-/Padhaltermotor
M2 Ansauganlagenmotor
M5 Reinigungsmittelpumpe (optional)
RV3 Potentiometer % Reinigungsmittel (optional)
SW1 Schalter Bürsten-/Antriebsfreigabe
Farbcodes
BK Schwarz
BU Hellblau
BN Braun
GN Grün
GY Grau
OG Orange
PK Rosa
RD Rot
VT Violett
WH Weiß
YE Gelb
P100127










