Carpet Cleaner User Manual

12 SCRUBTEC 653B – 653BL – 651BCL – 661BL 9097058000(2)2009-10 A
DEUTSCH BETRIEBSANLEITUNG
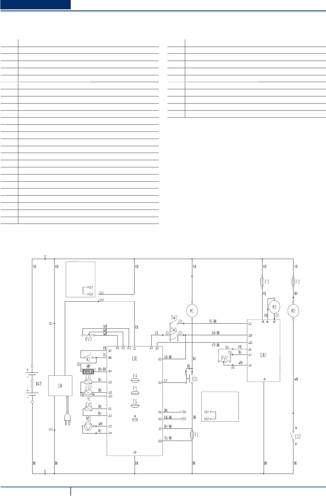
SCHALTPLAN (SCRUBTEC 653BL, SCRUBTEC 651BCL, SCRUBTEC 661BL)
(**)
(*)
P100128
Legende
BAT 24-V-Batterie
C1 Batteriestecker
C2 Stecker Ladegerät
CH Ladegerät (optional)
CSC Nebenstecker Zylinderbürstenkopf
EB1 Elektronikkarte Funktionen
EB2 Elektronikkarte Antriebsanlage
ES1 Fernschalter Bürstenmotoren
ES2 Relais Ansauganlage
EV1 Elektroventil Reinigungsmittel (optional)
F1 Sicherung Kopf
F2 Sicherung Ansauganlage
F3 Sicherung Antriebsanlage
F4 Sicherung Signalkreise
F5 Sicherung Freigabe Bürsten/Padhalter
F6 Sicherung Pumpen
HM Stundenzähler (optional)
K1 Zündschlüssel
M1 Bürsten-/Padhaltermotor
M2 Ansauganlagenmotor
M3 Motor Antriebsanlage
M5 Reinigungsmittelpumpe (optional)
RV2 Potentiometer maximale Geschwindigkeit
RV3 Potentiometer % Reinigungsmittel (optional)
SW1 Schalter Bürsten-/Antriebsfreigabe
SW2 Rückwärtsgangschalter
Nur für Geräte mit Zylinderbürstenkopf(*)
Nur für Geräte ohne integriertes Ladegerät(**)
Farbcodes
BK Schwarz
BU Hellblau
BN Braun
GN Grün
GY Grau
OG Orange
PK Rosa
RD Rot
VT Violett
WH Weiß
YE Gelb










