Carpet Cleaner User Manual

12 SCRUBTEC 653B – 653BL – 651BCL – 661BL 9097058000(2)2009-10 A
FRANÇAIS MANUEL OPERATEUR
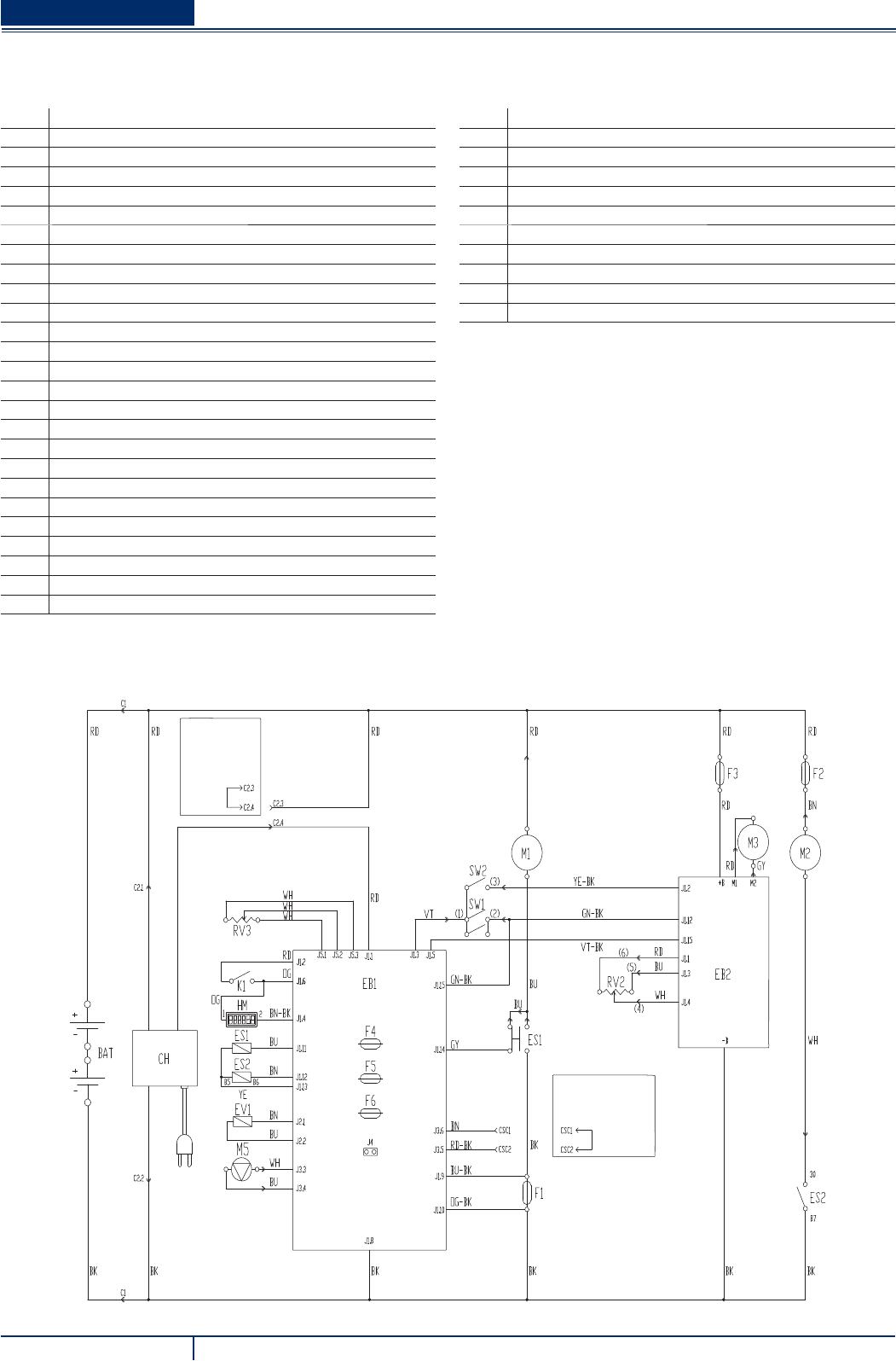
SCHEMA ELECTRIQUE (SCRUBTEC 653BL, SCRUBTEC 651BCL, SCRUBTEC 661BL)
(**)
(*)
P100128
Légende
BAT Batterie 24 V
C1 Connecteur batteries
C2 Connecteur chargeur de batterie
CH Chargeur de batterie (optionnel)
CSC Connecteur secondaire tête porte-brosses cylindriques
EB1 Carte électronique de contrôle fonctions
EB2 Carte électronique système de traction
ES1 Télérupteurs moteurs brosses
ES2 Relais système d’aspiration
EV1 Electrovanne détergent (optionnelle)
F1 Fusible tête
F2 Fusible système d’aspiration
F3 Fusible système de traction
F4 Fusible circuits de signaux
F5 Fusible déclenchement brosses / plateaux support disque
F6 Fusible pompes
HM Compteur horaire (optionnel)
K1 Clé de contact
M1 Moteur brosse / plateau support disque
M2 Moteur système d’aspiration
M3 Moteur système de traction
M5 Pompe détergent (optionnelle)
RV2 Potentiomètre vitesse maximum
RV3 Potentiomètre % détergent (optionnel)
SW1 Boutons-poussoirs de validation brosses / traction
SW2 Bouton-poussoir de marche arrière
Seulement pour autolaveuses avec tête porte-brosses cylindriques(*)
Seulement pour autolaveuses sans chargeur de batterie à bord(**)
Codes des couleurs
BK Noir
BU Bleu
BN Marron
GN Vert
GY Gris
OG Orange
PK Rose
RD Rouge
VT Violet
WH Blanc
YE Jaune










