Carpet Cleaner User Manual

9097058000(2)2009-10 A SCRUBTEC 653B – 653BL – 651BCL – 661BL 11
USER MANUAL
ENGLISH
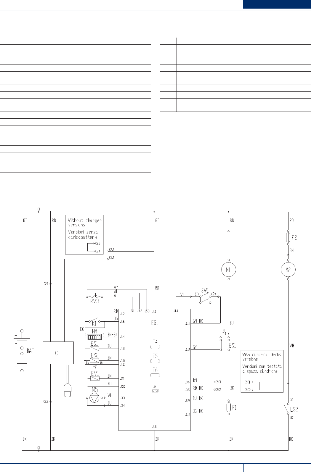
WIRING DIAGRAM (SCRUBTEC 653B)
Key
BAT 24 V battery
C1 Battery connector
C2 Battery charger connector
CH Battery charger (optional)
CS Deck connector
EB1 Function electronic board
ES1 Brush electromagnetic switches
ES2 Vacuum system relay
EV1 Water solenoid valve
F1 Deck fuse
F2 Vacuum system fuse
F4 Signal circuit fuse
F5 Brush release fuse
F6 Pump fuse
HM Hour counter (optional)
K1 Ignition key
M1 Brush/pad-holder motor
M2 Vacuum system motor
M5 Detergent pump (optional)
RV3 Detergent % potentiometer (optional)
SW1 Brush/drive system enabling switch
Colour codes
BK Black
BU Blue
BN Brown
GN Green
GY Grey
OG Orange
PK Pink
RD Red
VT Violet
WH White
YE Yellow
P100127










