User Manual

Initial Power Up – continued
Jan 2002
2-13
SC4812ET BTS Optimization/ATP — CDMA LMF
LED Status
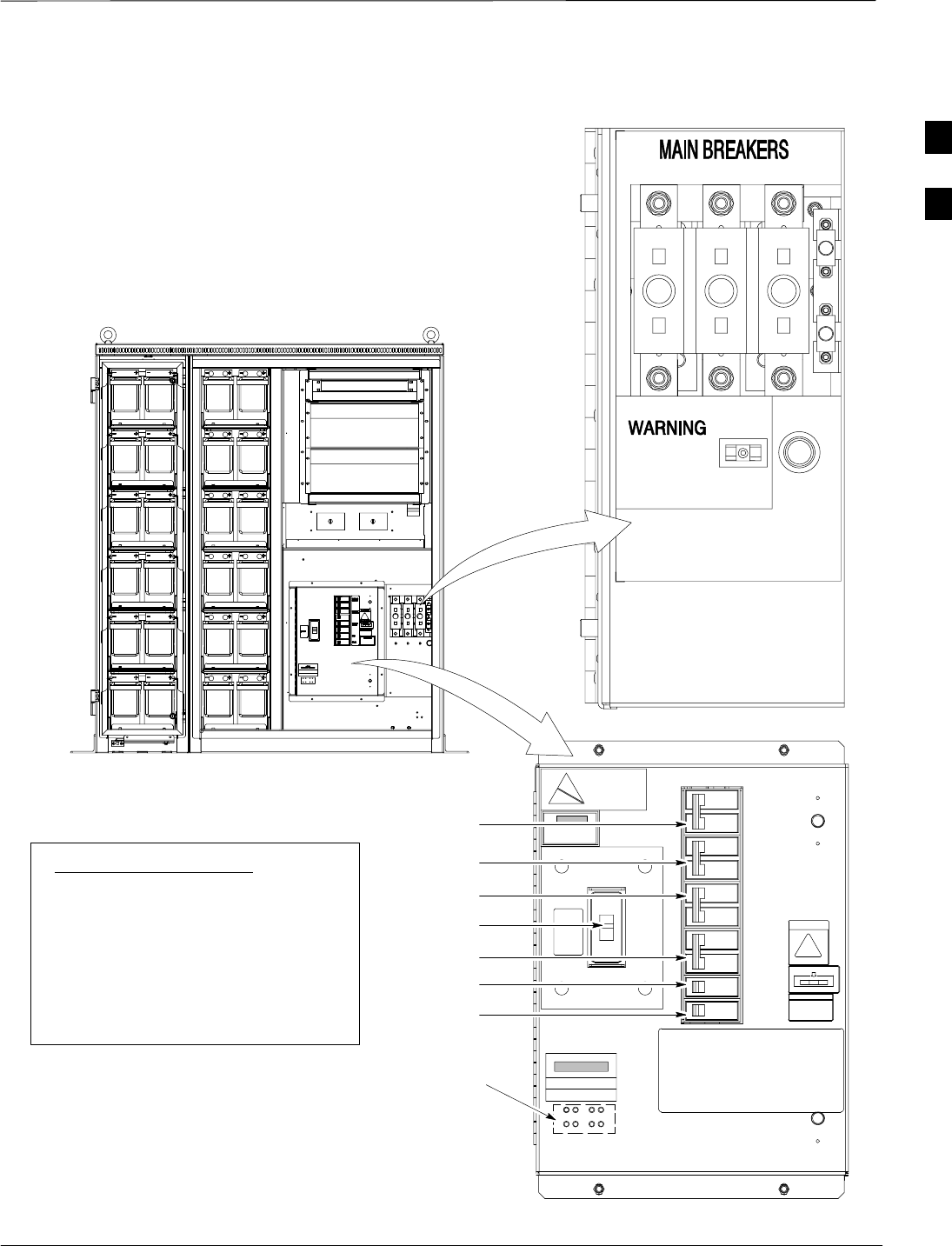
Figure 2-7: Power Cabinet Circuit Breaker Assemblies
A B C
BREAKER SYSTEM BREAKER
SHOULD BE RESET
IF ILLUMINATED OR
AFTER RESET OF
3 MAIN BREAKERS
TO RESET MAIN BREAKERS, PRESS
AND HOLD IN GREEN BUTTON WHILE
PRESSING 160 AMP BREAKER BUTTON
UNTIL LATCHED RELEASE GREEN BUTTON
AFTER ALL 3 BREAKERS HAVE BEEN RESET
ON OFF
BREAKER SYSTEM
BREAKER
SYSTEM RESET
BUTTON
FW00144
POWER CABINET
Front View
AC Circuit
Breaker
DC Circuit
Breaker
160 160 160
25
25
Circuit Breaker Legend:
1. Main 150 Amp. . . . . . . . . . . . . . .
2. Rectifier Shelf #1 70 Amp. . . .
3. Rectifier Shelf #2 70 Amp. . . .
4. Battery Heater #1 15 Amp. . . .
5. Battery Heater #2 15 Amp. . . .
6. GFCI 15 Amp. . . . . . . . . . . . . . .
7. Spare 15 Amp. . . . . . . . . . . . . .
RECTIFIER
SHELF #1
RECTIFIER
SHELF #2
BATTERY
HEATER #1
GFCI
SPARE
BATTERY
HEATER #2
CAUTION
LIVE TERMINALS
2
3
4
5
6
1
7
ATTENTION
MAIN
2










