Manual

9
3. The pump can be mounted to a wall as shown in Figure D. A wall
mount bracket kit is available which includes all necessary
hardware to mount the pump to the wall. Mounting the pump
other than as shown in Figure D defeats the purpose of the
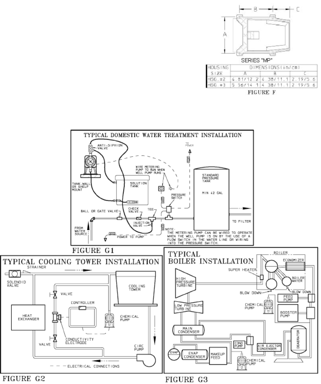
housing drain. Mounting dimensions for the pump are provided in
Figure F for reference.
4. The pump can be mounted on top of a solution tank as shown in
Figure E. Install chemical pump on the cover. Insert suction
tubing through the center hole and cut tubing so foot valve/strainer
hangs about 1 or 2 inches (2.5 - 5 cm) above the bottom of the
tank. Mount the chemical pump rigidly by drilling four .25in. (6.3
mm) holes and using four #10 screws and nuts.
5. USE AN ANTI-SIPHON VALVE IN THE DISCHARGE LINE whenever the fluid pressure in the discharge line is below
atmospheric pressure. This can occur if the injection point is on the suction side of a water pump or against a
"negative" head such as when feeding down into a well, SEE FIGURE G1.










