Printer Developer's Guide
Table Of Contents
- Contents
- 1. Setting Up the Printer
- 1.1. Select a Location
- 1.2 Where to install your printer
- 1.3 Unpacking
- 1.4 Installing the Printer
- 1.5 Installing the Paper
- 2. Using the Printer
- 3. Maintenance
- 4. Troubleshooting and Repair
- 5. Specifications
- 5.1 Introduction
- 5.2 General Specifications
- 5.3 Communication Interface Specifications
- 5.4 Physical Characteristics
- 5.5 Logical Characteristics
- 5.6 Printer Performance
- 5.7 Media Specifications
- 5.8 Paper Feed Specifications
- 5.9 MICR Specifications (Only with MICR type)
- 5.10 Auto Cutter Specifications
- 5.11 Ribbon Specifications
- 5.12 Reliability
- 6. Command Description
- 7. Using the Unitool Printer Driver
- 1. Setting Up the Printer

|
Developer’s Guide: English 75
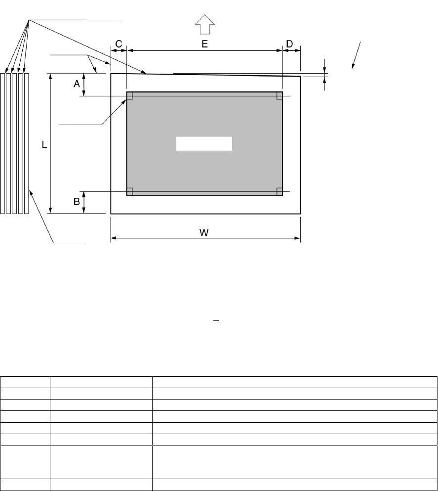
3 Multi-part Paper
The standard multi-part paper is the one whose top edge is pasted.
OP425_13.eps
1 Pasted securely (1mm) 5 Paper inserting direction
2 Base line 6 Printing area
3 First character position 7 Against the perpendicular to the Base line
4 Printing surface 8 + 0.2mm or less
Standard media are in A5 and B5 sizes.
A25024.doc
Symbol Designation Standard Value
W Paper width 105~215.9mm (4.13~8.5 inch)
L Paper Length 70~297mm (2.76~11.7 inch)
A Top margin 6.35mm (1/4 inch)
B Bottom margin 19.6mm (0.77 inch)
C Left margin 2.54mm (0.1 inch) or more
D Right margin This distance may be adjusted from 2.54 to 27.94mm (0.1~1.1 inch)
by moving the paper guide. D=2.54 mm can set only for a sheet
whose W=190.5mm (7.5 inch) or shorter
E Printing area width Max 160.02mm (6.3 inch)
Note 1 The height-width ratio must be 1 : 2/3 – 2.
Note 2 Use a flat sheet free of curls, bends (especially those on its edges), cambers, wrinkles, etc. If a sheet is not flat, it may
be contaminated with ink due to ink ribbon contact.
Note 3 Wide paper with the left or right edge pasted should be printed carefully, since it may twist during feeding.
Note 4 Only a multi-part slip can be used for printing. (Insert it from the front side of the printer.)
2
1
3
5
7
8
4
6