Microscope Component Guide

MICROSCOPE SYSTEM BXFM
22
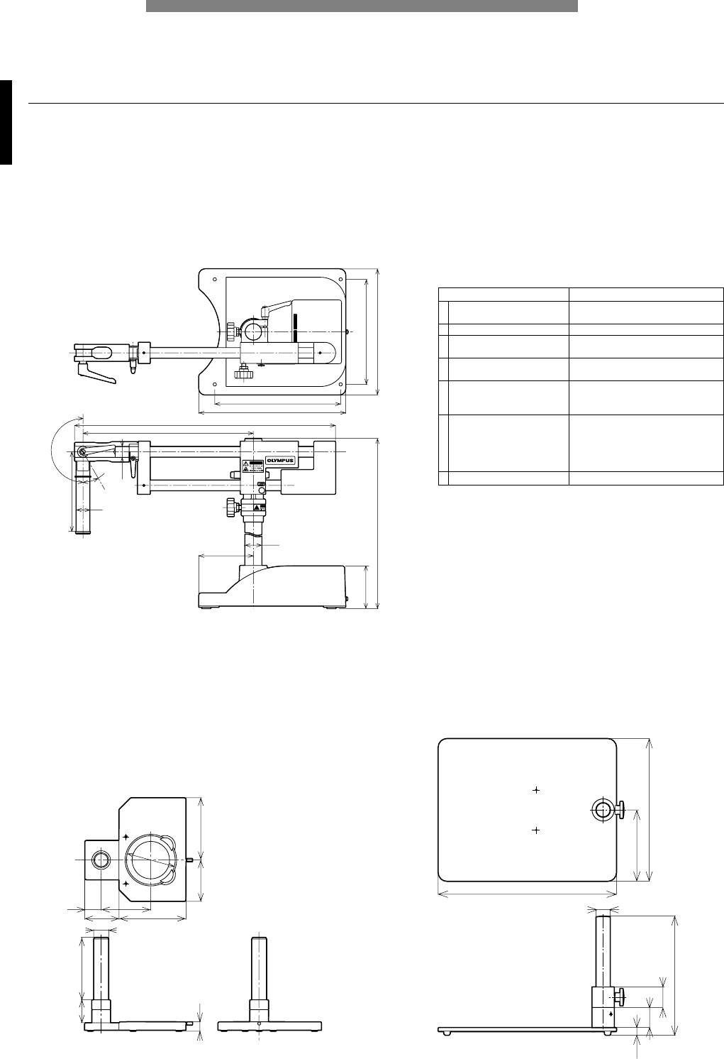
U-ST
Compact stand
Weight: 5kg Unit: mmWeight: 1.8kg
106
73 143
88
ø110
133
ø32
49 133
20
35
ø40
130
503
ø25
Ø32
214~435
622
350
300
180º
90
50.5
30º
250
300
Stands
A wide variety of stands are available to suit different applications and purposes.
Item Specifications
1 Diameter of focusing arm or
ø32mm
fixing section of tube
2 Vertical pole diameter ø40mm
3 Horizontal poles diameters ø25mm
(both upper and lower poles)
4 Stroke Horizontal: 234mm,
Vertical: 205mm
5 Movement range Horizontal: 541 (435+106) mm max.
(Vertical pole —
BXFM-S optical axis)
6 Maximum specimen weight Forward: 10kg
(within 90-degree area)
Transverse direction: 6kg
Backward direction: 7kg
(at maximum stroke)
7 Weight 30kg
Major specifications
SZ2-STU2
Universal stand type 2
SZ-STL
Large stand
160
320
400
ø32
17.5
45
46
267
* The rotation angle of the horizontal arm can restrict to 90 degrees with stopper.










