User's Manual
Table Of Contents

Principles of Operation
4-513610-A2-GB41-60 March 1999
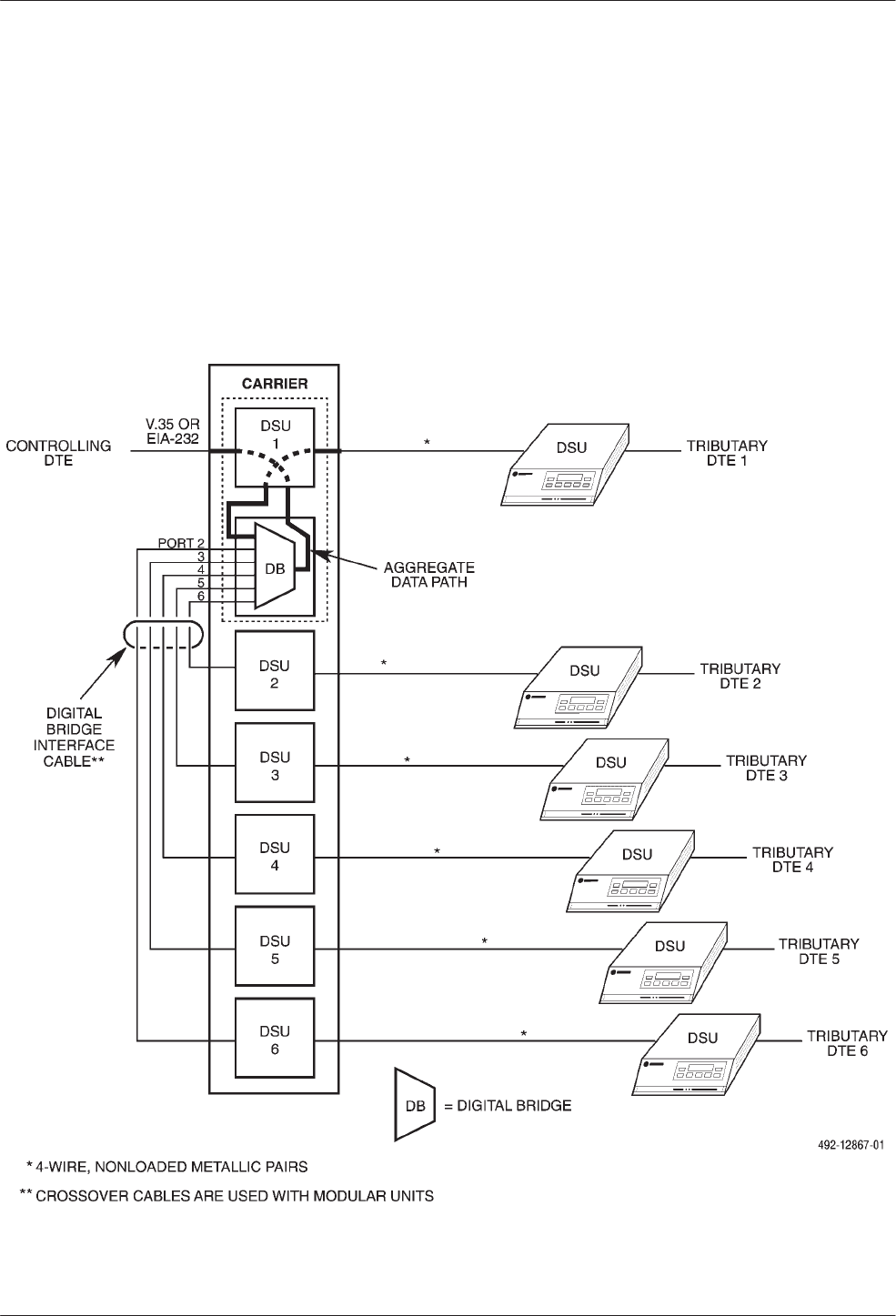
Bridged LADS Architecture
One TDM circuit card operating in Bridge mode can
support up to six tributary DSUs (Figure 4-39). In the
transmit direction, data from the controlling DTE is
broadcast to all ports in the digital-sharing group. In the
receive direction, data from a tributary site flows through
the aggregate data path to the controlling DTE.
To establish the data paths shown in Figure 4-39, the
Bridge Rate configuration option must be set to =DSU.
(Configuration options are set via the DCP, as discussed in
Chapter 5; the Bridge Rate configuration option is
discussed in the MUX Configuration Options section of
Chapter 5.)
The control DSU is configured for internal timing
unless the controlling DTE provides the timing source, in
which case, the DSU is configured for external timing.
Each tributary DSU on the LADS multipoint network is
configured for received timing. The DSUs connected to
the bridge are configured for external timing and should
have their elastic stores enabled.
Figure 4-39. Bridged LADS Architecture and Signal Flow