User's Manual
Table Of Contents

Principles of Operation
4-313610-A2-GB41-60 March 1999
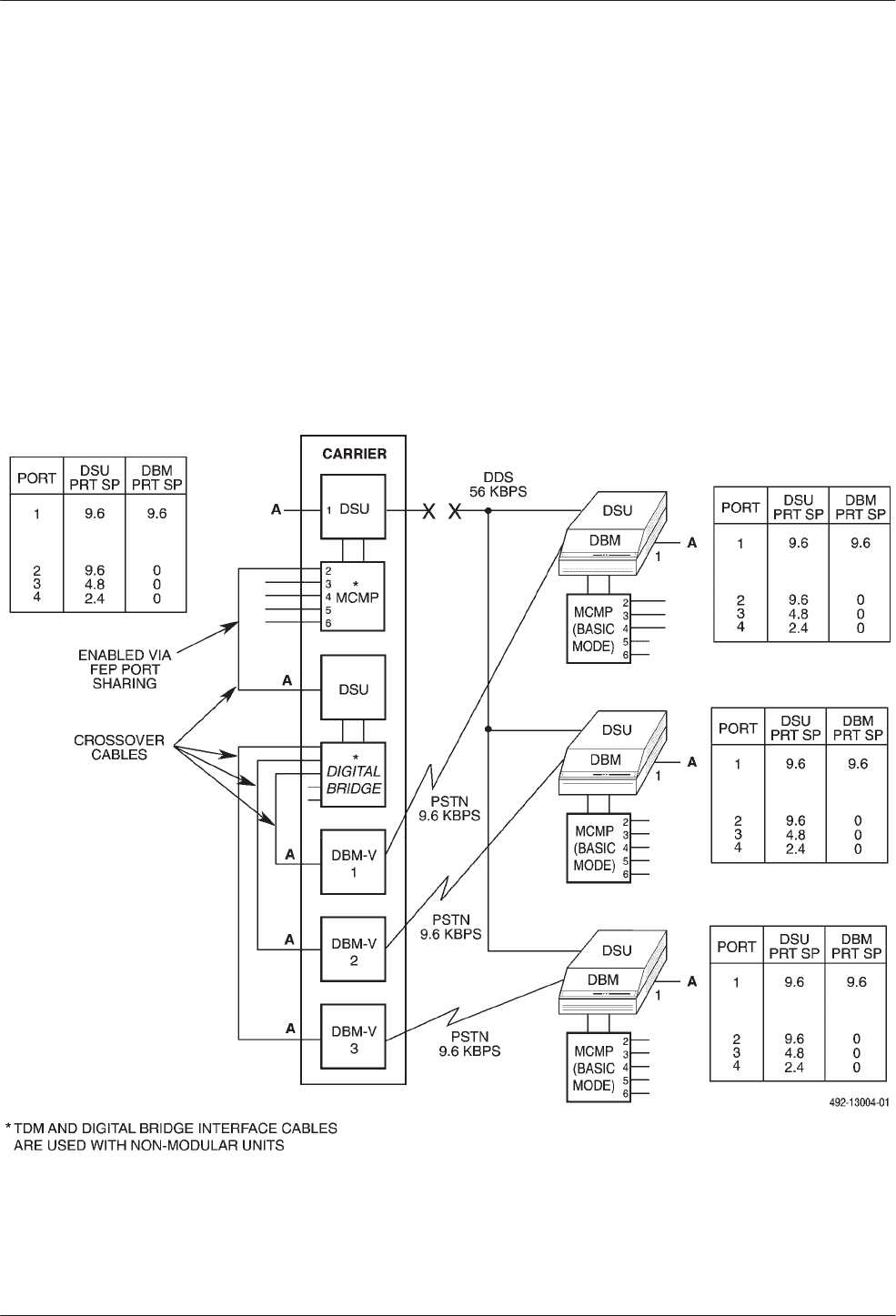
When backup is provided for one channel, the
MCMP circuit can support a total of five
application channels, and the control DSU must
have the backup port and the next highest port
configured as an FEP port-sharing group. The
channel to be backed up must appear on Port 1, 3,
or 5, and the port speed cannot exceed 14.4 kbps.
Enabling FEP port-sharing group 1 and 2 (or 3 and
4, or 5 and 6) routes the application channel to the
extended-bridge unit and DBM-Vs, where it is
routed to the tributary DSU(s) via the PSTN
connections. All other channels to the tributaries in
backup are lost until the alarm is fixed and the
MCMP circuit is restored.
The DBM-V should be configured for V.13
Signaling (V.13 Signl) enabled and for disruptive
diagnostics (Diag Type). The tributary DSU should
be configured for Transmit Carrier Select
(TxCarrSel) set to Cntrl on the port that is to be
backed up.
When the DBM-V has dialed the tributary DBM, a
Change Options command should be sent to the
tributary DSU changing the Diagnostic Type (Diag
Type) configuration option to Disruptive (Disr).
Figure 4-24. Case 3 – Backing Up One Complete Channel (Full Backup)